3273 W Armitage Avenue, Chicago, IL

Overview

  • 61749
  • Property ID
  • Updated On:
  • March 31, 2026

Description

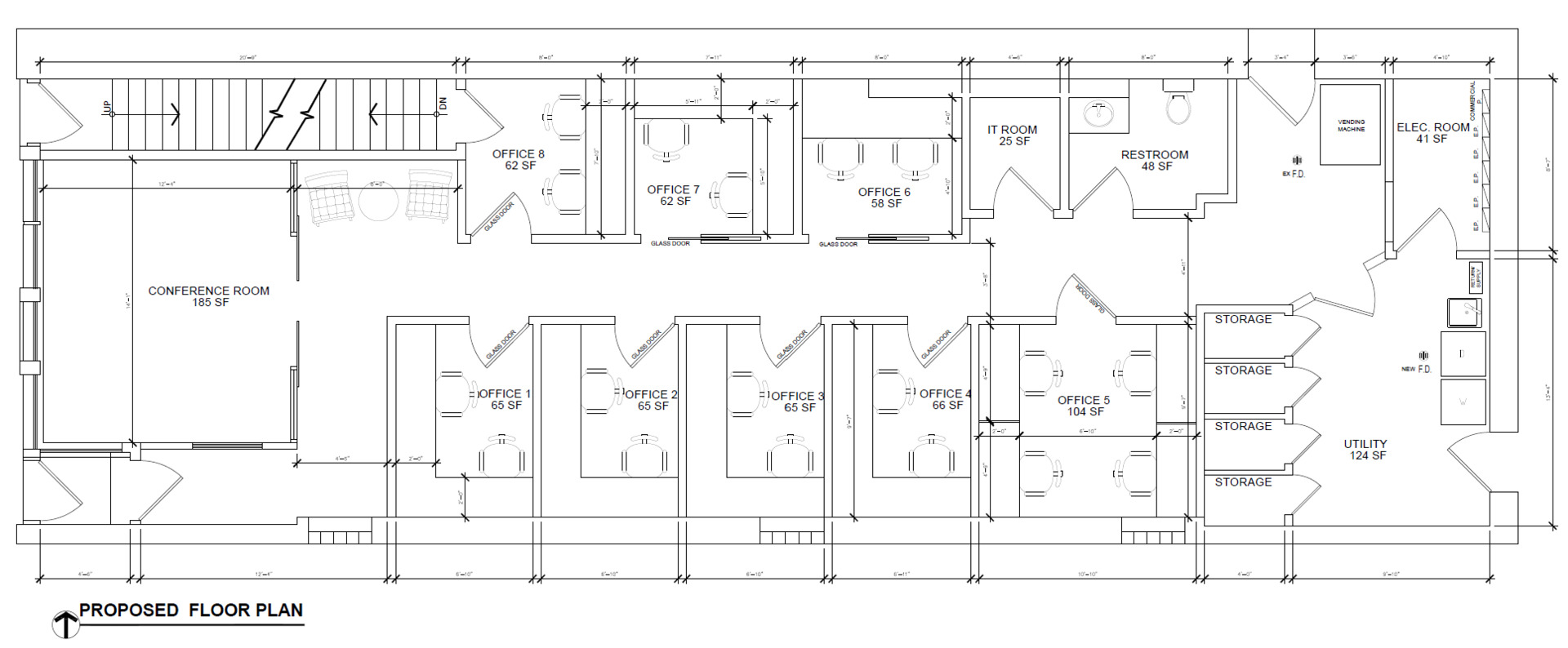
Desk606 office suites anticipated to be complete late March-April 2026. There are 8 furnished office suites in total: 1 large suite which can accommodate up to 4, 4 medium suites which can accommodate up to 2, and 3 smaller suites which can accommodate between 1-2. Inquire about lease pricing for all office sizes. The offices are connected to a larger coworking space offering 2 conference rooms, 3 meeting booths, kitchenette, and high-speed fiber internet. All utilities are included. Rental parking located in the adjoining parking lot and ample street parking in the area. Located in Logan Square close to The 606, transportation, restaurants, and nightlife. Lease terms are flexible. Perfect for a solo-practitioner or a close-knit team needing an affordable secure private office.

Climate Control
Air Conditioning
Other Features
Brick
Central Air
Circuit Breakers
Other
Vinyl

Transport
Supermarkets
Schools
Restaurants
Pharmacies
Hospitals

yelp logo

Similar Listings

For Sale

3735 W Belmont Avenue, Chicago, IL

$1,025,000
Avondale - 12,000 SF total two-story timber loft building for sale. 6,000 SF per floor for ...
For Sale

1106 S Francisco Avenue, Chicago, IL

$640,000
BIG PRICE DROP!! This beautiful stone multiunit building is conveniently located near vari ...
Information for the property at 3273 W Armitage Avenue, Chicago, IL, 60647 (Property ID: 61749) is deemed reliable but not guaranteed. Property details, pricing, and availability are subject to change without notice. Buyers should independently verify all information before making any real estate decisions.
🚧 Our website is under development. We are working hard to bring you better eperience ,please check back soon!

Compare Listings

Sunita Kakarlapudi