Overview
- 184660
- Property ID
- Updated On:
- April 12, 2026
- Independent Homes
- Category
- 3
- Bedrooms
- 3
- Bathrooms
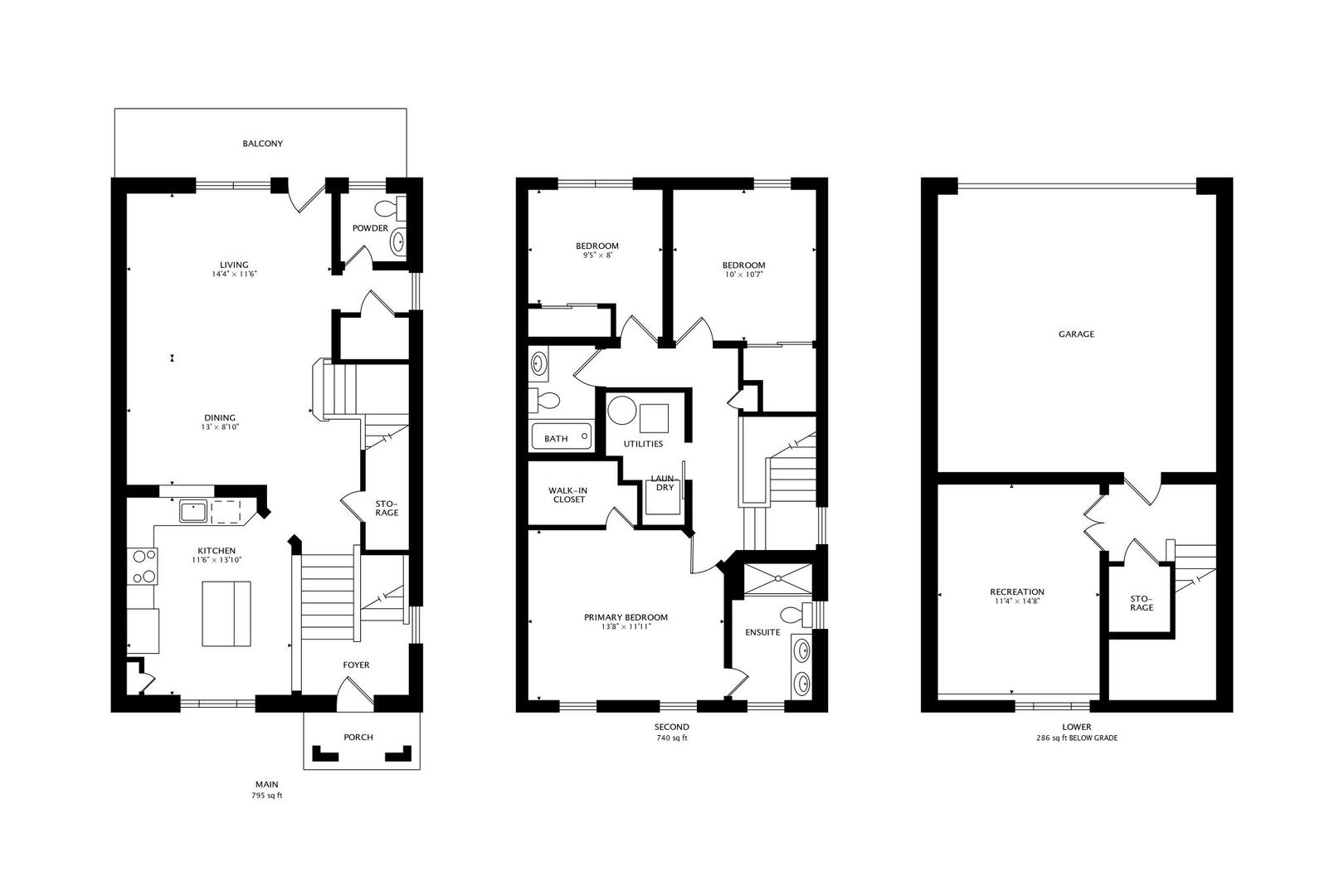
- 1,821 ft2
- Property Size
Description
SUNNY AND PRISTINE END-UNIT TOWNHOME IN COVETED REGENCY AT THE GLEN! Sun-drenched, open floor plan with elevated updates throughout. Generous eat in kitchen upgraded with gorgeous new Cambria quartz countertops, tile backsplash, Moen hardware, LG refrigerator, LG Studio stove, Bosch dishwasher, and Whirlpool microwave. The largest model built, this home enjoys an expansive main level with high ceilings, gleaming hardwood floors, and a roomy living/dining area, which opens to an extra wide balcony with new decking. Three bedrooms and laundry on the upper level, primary bedroom has a large walk-in closet. Both second floor baths are upgraded with Cambria quartz countertops, new tile in shower, and Moen hardware. Lower level with new french doors offers flex space as a rec room, office, or extra bedroom. New light fixtures throughout and Karastan carpet, Minca fans and blackout shades in bedrooms, make this move-in ready gem even better. Location cannot be beat – walk out your front door into shared green space, around the corner to the beautiful swan pond, and just a short distance to running trails, golf, Glen Town Center, Metra, Kohl’s Children’s Museum, groceries and entertainment. Award winning schools make this the complete package, welcome home!
- Principal and Interest
- Property Tax
- HOA fee
- Private Mortgage Insurance
































