Overview
- 443933
- Property ID
- Updated On:
- April 25, 2026
- Independent Homes
- Category
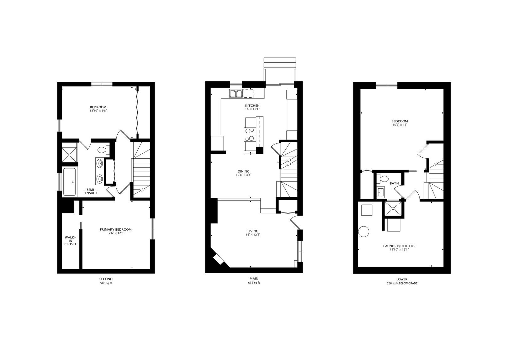
- 3
- Bedrooms
- 2
- Bathrooms
- 1,851 ft2
- Property Size
Description
Welcome to 3331 N Racine #D – a meticulous 3 bed/2 bath, end-unit, courtyard townhome in the sought-after Hawthorne Court community and Nettelhorst Elementary. Nestled in Southport Corridor near Wrigley Field in greater Lake View, this recently refreshed residence offers both comfort and convenience in one of Chicago’s most vibrant neighborhoods. Set quietly back east off Racine Ave., this home welcomes you with a private, sun-drenched courtyard entrance surrounded by lush greenery. Inside, a south and west-facing open floor plan is filled with natural light, highlighting freshly finished diagonal oak hardwood floors in a classic Jacobean stain, professionally painted throughout, and custom window treatments. The main level features a distinctive on-grade sunken living room with fireplace and comfortable work flex space, flowing seamlessly into a dedicated dining area. The adjacent chef’s kitchen is thoughtfully designed with ample shaker cabinetry, custom built-in buffet/dry bar, granite countertops, stainless steel appliances, breakfast bar island, wine cooler, and generous storage. Completing the main level is a spacious, fully fenced private patio – ideal for outdoor dining, grilling, and entertaining. Upstairs, the primary suite offers vaulted ceilings and a custom built (floor-to-ceiling) walk-in closet, while the second bedroom enjoys abundant sunlight from its east and south exposures. The shared bathroom suite includes a dual vanity, soaking tub, and separate shower. The lower level provides flexible living space with a third bedroom or family room, featuring brand-new LVT flooring, an updated full bath, in-unit laundry, and additional storage. One attached garage parking space is included. Located just moments from the dining, shopping, and nightlife of “Southport-Clark-Belmont-Roscoe,” perfectly close (but not TOO close) Wrigley Field and nearby transit options. This home is part of a well-maintained, professionally-managed, and gated association in a prime North Side location. Over $40,000 in recent cosmetic and mechanical upgrades.
- Principal and Interest
- Property Tax
- HOA fee
- Private Mortgage Insurance







































