Overview
- 293551
- Property ID
- Updated On:
- April 18, 2026
- Independent Homes
- Category
- 2
- Bedrooms
- 3
- Bathrooms
- 1,720 ft2
- Property Size
Description
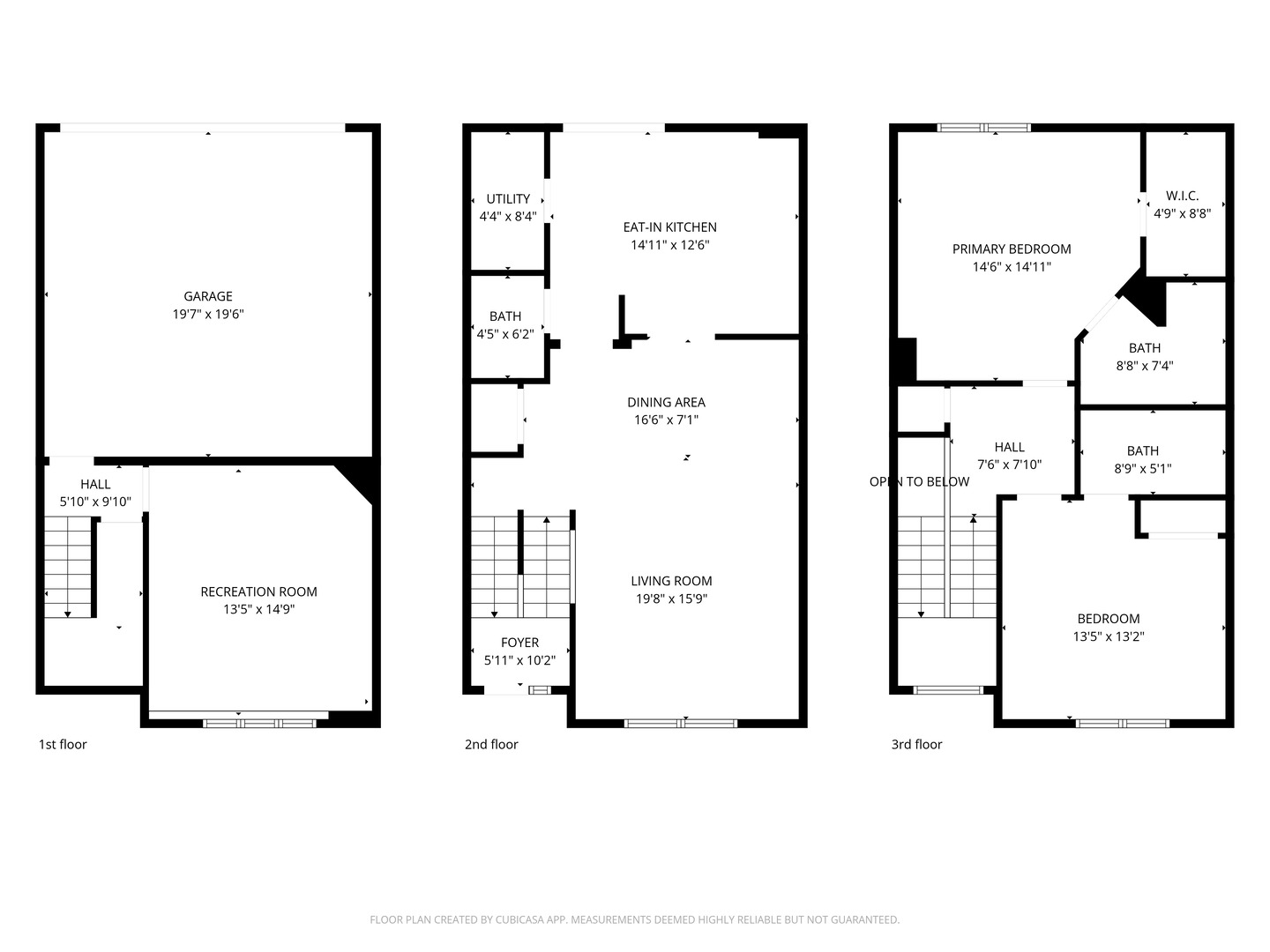
Welcome home to this beautifully maintained townhome in the desirable West Ridge subdivision! This move-in ready Dunbar model offers stunning views of the wetlands and surrounding countryside. Soaring 9′ ceilings welcome you into a bright, open living and dining space that flows seamlessly into the expansive eat-in kitchen, featuring 42″ cabinetry, stainless steel appliances, abundant counter space, and a sliding door leading to a spacious 5’x16′ deck-perfect for relaxing or entertaining. The main level also includes a convenient half bath and a laundry room with newer washer and dryer. Upstairs, you’ll find two private bedrooms, including a generous primary suite with a walk-in closet complete with professional organizers, dual vanity, and walk-in shower. The finished English lower level offers flexible space ideal for a home office, workout area, or additional living space, with access to the attached 2-car garage. Located near the growing Route 20, I-90, and Randall Road corridor, with endless shopping and dining options, and served by highly rated District 301 schools-this home truly has it all!
- Principal and Interest
- Property Tax
- HOA fee
- Private Mortgage Insurance




























