Overview
Description
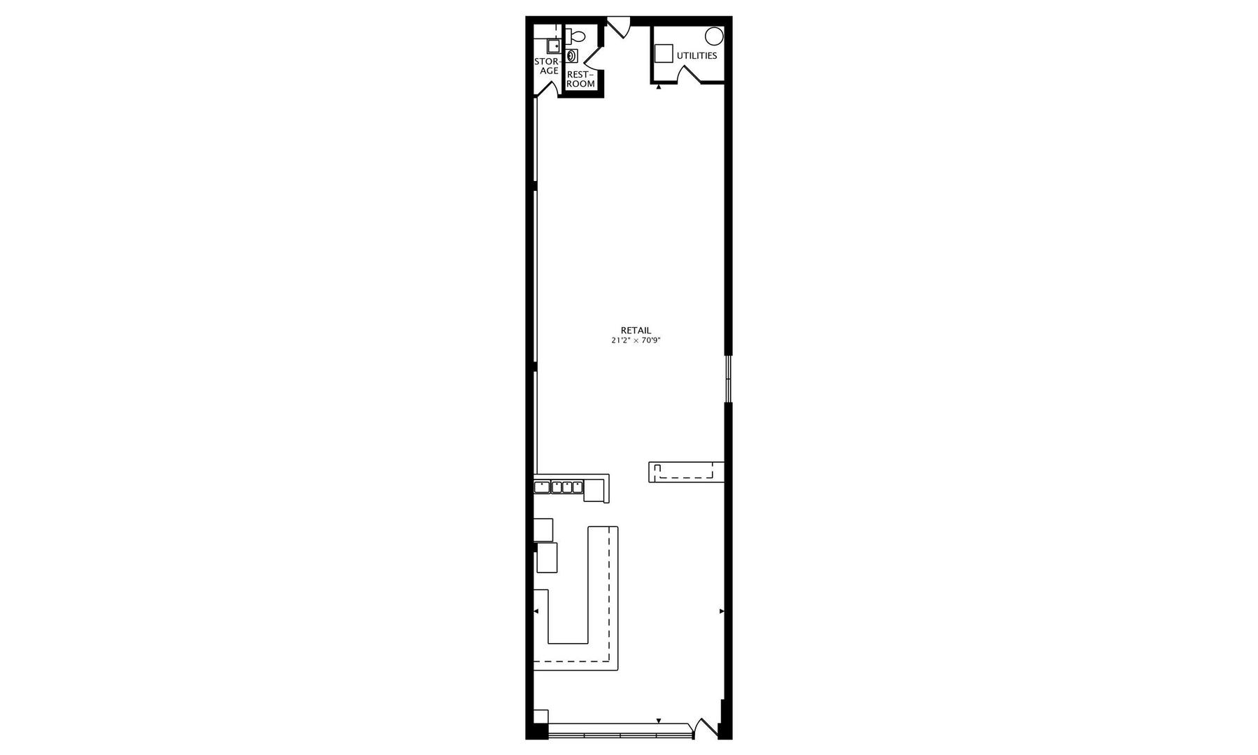
BEST VALUE on the market in Logan Square! Fantastic opportunity to lease this expansive 2,000sf commercial space in a prime Logan Square location, just steps from Diversey/Milwaukee/Kimball corridor. Flexible B2 zoning allows for many different business services, including a live/work option! Previously utilized as a large workout studio that hosted various fitness classes, with a convenient smoothie bar in the front portion of the store, this space is perfect for a trendy coffee shop/cafe, spa, nail salon, gym, event space, and endless other ideas you may have. Enjoy the vintage Chicago charm with soaring ceilings and exposed timber beams. This unit also features 1 bathroom along with a utility closet towards the back. Central heat and air. B2-2 Zoning. Close to all the Logan Square shopping, dining, and entertainment. High-visibility location with average traffic of over 13,100 vehicles per day, situated in a dense retail corridor with heavy foot traffic near Gap Outlet, Unanimous Boxing Gym, Pinot’s Palatte, Bank of America, Hopewell Brewery & The Dill Pickle. Easily accessible to public transportation, located near multiple CTA bus routes, including the #56 Milwaukee / #76 Diversey, as well #82 Kimball/Homan. Less than one block from CTA Blue line Logan Square station (Spaulding entrance). Flexible lease terms available. Make this yours today!


























