Overview
- 194487
- Property ID
- Updated On:
- April 14, 2026
- 2 to 4 Units
- Category
- 6
- Bedrooms
- 4
- Bathrooms
- 0 ft2
- Property Lot Size
Description
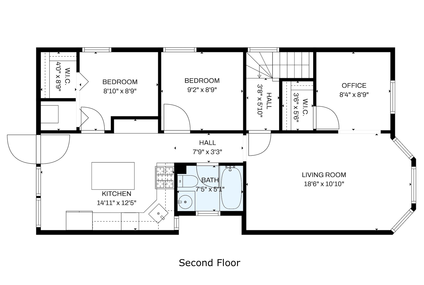
Offer accepted! Paperwork Pending. Multiple offers received. Final offer deadline: 6pm on Monday, April 13th for ‘highest and best.’ Amazing Victorian 2 flat plus nonconforming attic unit in the heart of Roscoe Village! Unbeatable location on Damen & Cornelia. So much charm & character with beautiful features. Unit 1: 3 bedroom/2 bath duplex down with original woodwork, original built-in hutch, granite counters, dark cherry cabinets, SS appliances, dark hardwood floors & large deck. Unit 2: 2 bedroom/1 bath plus large office with closet, recently renovated kitchen, original natural woodwork throughout, built-in hutch & large deck. Non-conforming attic unit is a spacious studio with an excellently equipped eat-in kitchen. Two car garage with electric car charger installed. Near Addison & Paulina Brown Line stops & CTA bus routes. Just a 2 minute walk to Roscoe shops, restaurants, bars, parks, schools and more. Huge backyard with paver patio and pergola. Shared laundry in basement, central a/c, gas forced heat. All units are currently rented.
- Principal and Interest
- Property Tax
- HOA fee
- Private Mortgage Insurance



























