Overview
Description
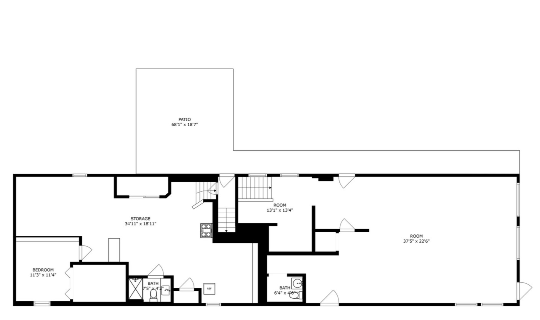
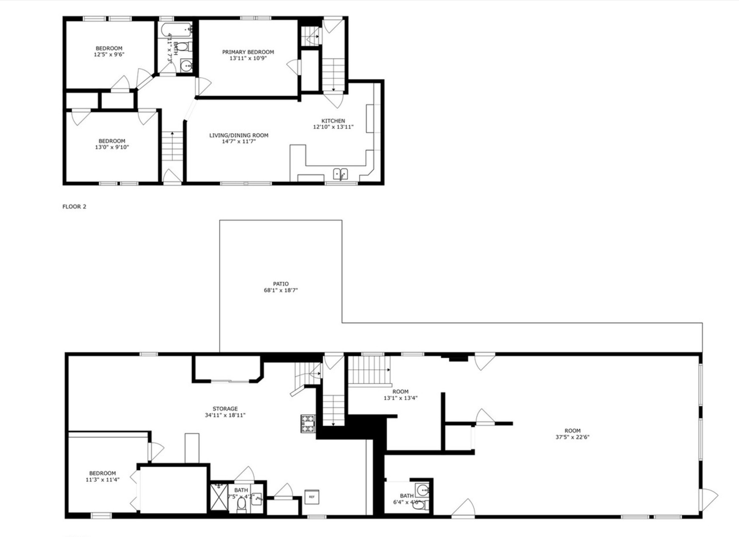
Mixed-Use Building with Apartment and Extra Lot for Sale: This versatile mixed-use building is situated on a corner lot in a high-traffic area, perfect for a variety of business opportunities. The front of the building was previously a fast-food establishment, offering endless potential for retail, office space, or a restaurant. The property includes a basement, ideal for additional storage or other uses. The rear apartment features three spacious bedrooms, a kitchen, dining area, and a full bathroom. The apartment also includes a full basement with a bathroom, a large living space, and an additional bedroom, providing ample room for comfort or future customization. The building boasts a well-maintained yellow brick facade with tuckpointing in excellent condition, and roof is in great shape. The sale includes the adjacent vacant lot, which is currently used for extra parking and yard space, adding further value and convenience for tenants or future business expansion. Located just across from the Amazon distribution center and near I-55, this property benefits from high visibility and traffic. The property is split into two parcels. Don’t miss out on this incredible opportunity!
- Principal and Interest
- Property Tax
- HOA fee
- Private Mortgage Insurance










































