Overview
- 425636
- Property ID
- Updated On:
- April 29, 2026
- Independent Homes
- Category
- 3
- Bedrooms
- 3
- Bathrooms
- 1,582 ft2
- Property Size
Description
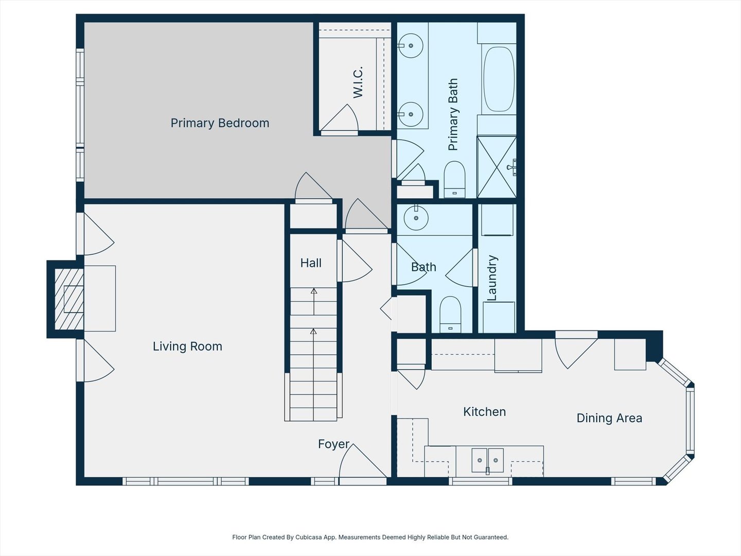
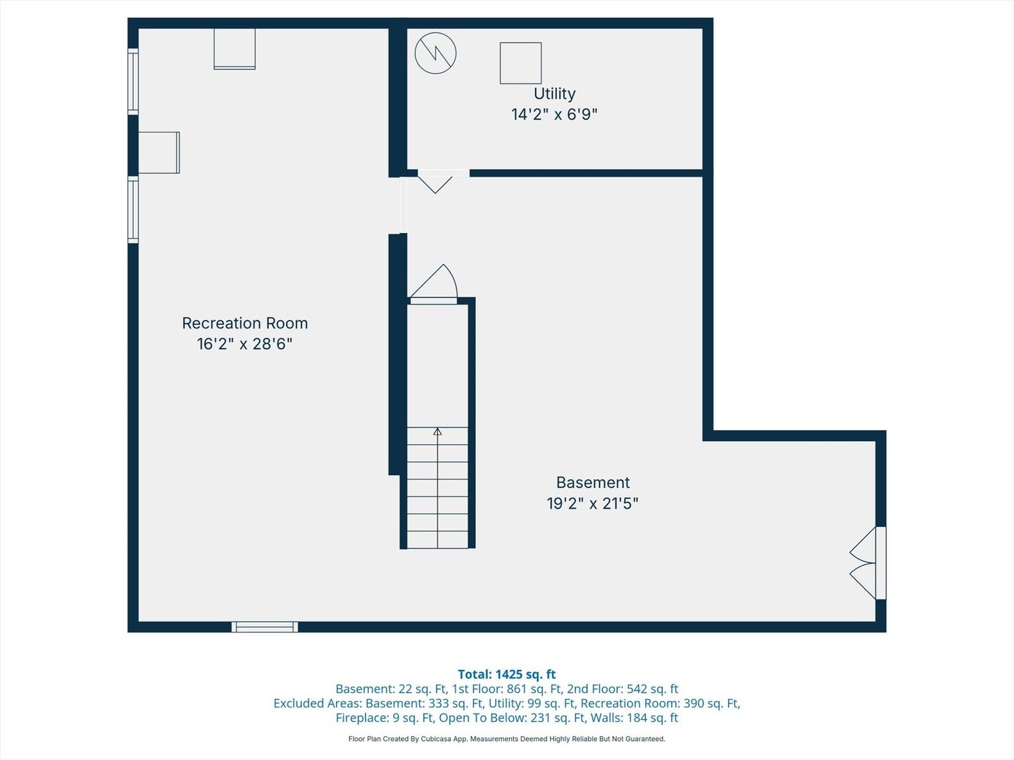
Spacious, sun-filled end-unit townhome in highly desirable Winchester Place, offering an unbeatable combination of comfort, convenience, and low-maintenance living. Perfectly situated in the heart of Naperville, this home provides easy access to everything while enjoying a peaceful, light-filled setting. Step inside to a dramatic two-story family room, where soaring ceilings and expansive windows flood the space with natural light. A cozy gas fireplace anchors the room, creating a warm and inviting atmosphere for everyday living and entertaining. The kitchen features granite countertops, stainless steel appliances, and a bright eating area with a large window overlooking the outdoors. Just off the main living space, a private patio offers the perfect spot for grilling, relaxing, or enjoying your morning coffee. Designed for true ranch-style living, the main level includes a spacious primary suite with a walk-in closet, additional closet, and an ensuite bath with dual sinks. The convenience continues with first-floor laundry and all main living areas located on the first floor. Upstairs, you’ll find two additional bedrooms, a full bath, and a versatile loft space, ideal for a home office, playroom, or additional living area. The full basement provides excellent potential for additional living space, recreation, or abundant storage. An attached two-car garage includes a Level 2 EV charger for added convenience. Enjoy maintenance-free living with lawn care and snow removal included, and take advantage of the close proximity to the DuPage River Trail, offering miles of scenic walking, running, and biking paths. This is the perfect blend of space, functionality, and location – move in and enjoy all that Naperville living has to offer.
- Principal and Interest
- Property Tax
- HOA fee
- Private Mortgage Insurance


































