Overview
- 540121
- Property ID
- Updated On:
- April 28, 2026
- Independent Homes
- Category
- 3
- Bedrooms
- 2
- Bathrooms
- 1,979 ft2
- Property Size
Description
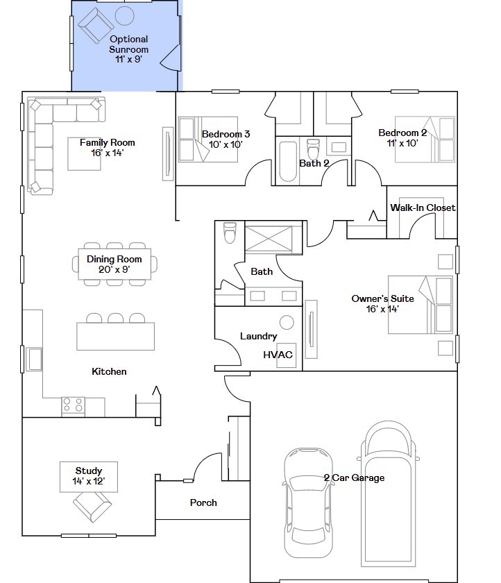
READY FOR MAY DELIVERY!!!! SPECIAL INCENTIVES AVAILABLE! Homesite# 0021 Discover the Sonoma, an inviting single-story home expertly designed to elevate everyday living through thoughtful details and modern comfort. This spacious floor plan features three bedrooms and two full bathrooms within an open-concept layout that seamlessly connects the kitchen, family room, and dining area-creating an ideal setting for both quiet nights in and lively gatherings with guests. The kitchen serves as the heart of the home, showcasing a large center island, Quartz countertops, stainless steel appliances, and ample cabinetry-perfect for everything from daily meal prep to casual entertaining. A versatile private study adds flexibility, offering the perfect space for a home office, reading room, or creative nook. The owner’s suite is a serene retreat, complete with a generous walk-in closet and a private en-suite bathroom designed for relaxation. Two additional bedrooms and a full shared bathroom provide comfortable accommodations for family members or visitors, ensuring everyone has their own space to unwind. Designed with quality and comfort in mind, the Sonoma includes 9-foot ceilings, luxury vinyl plank flooring, plush carpeting, Deluxe shower upgrades, smart-height water-saving commodes, and many other premium features to enhance your daily life. With its balance of style, function, and flexibility, the Sonoma is the perfect home for modern living. Exterior will be SLATE color vinyl siding with RIPLEY brick color. (pic for reference ONLY) *Photos are not this actual home* Experience the perfect blend of comfort, convenience, and outdoor living at Prairie Meadows, a charming new community offering low-maintenance ranch-style homes in the vibrant suburbs of Aurora, Illinois. Thoughtfully designed for effortless living and a love of nature, Prairie Meadows delivers a lifestyle centered on relaxation, recreation, and meaningful community connection. This thoughtfully planned neighborhood will feature a scenic park and playground, modern pickleball courts, a welcoming picnic shelter, fire pit, and comfortable seating areas, along with approximately 15 acres of open space to enjoy fresh air and the natural surroundings. Living at Prairie Meadows means you’re just minutes from some of Aurora’s most popular attractions. Downtown’s RiverEdge Park offers outdoor festivals, an amphitheater, and scenic trails along the Fox River, making it a go-to destination for entertainment and relaxation. For shopping enthusiasts, the Chicago Premium Outlets is a premier open-air retail center featuring more than 170 designer brands, seasonal events, and unbeatable deals. Golfers will love the nearby Orchard Valley Golf Course, a beautifully maintained 18-hole championship course perfect for both casual and competitive play, complete with a welcoming clubhouse for dining and socializing.
- Principal and Interest
- Property Tax
- HOA fee
- Private Mortgage Insurance



















