Overview
- 310755
- Property ID
- Updated On:
- April 19, 2026
- Independent Homes
- Category
- 4
- Bedrooms
- 4
- Bathrooms
- 3,365 ft2
- Property Size
- 1 ft2
- Property Lot Size
Description
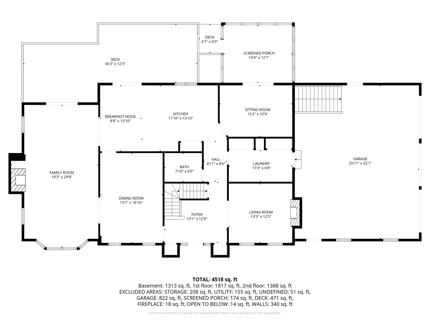
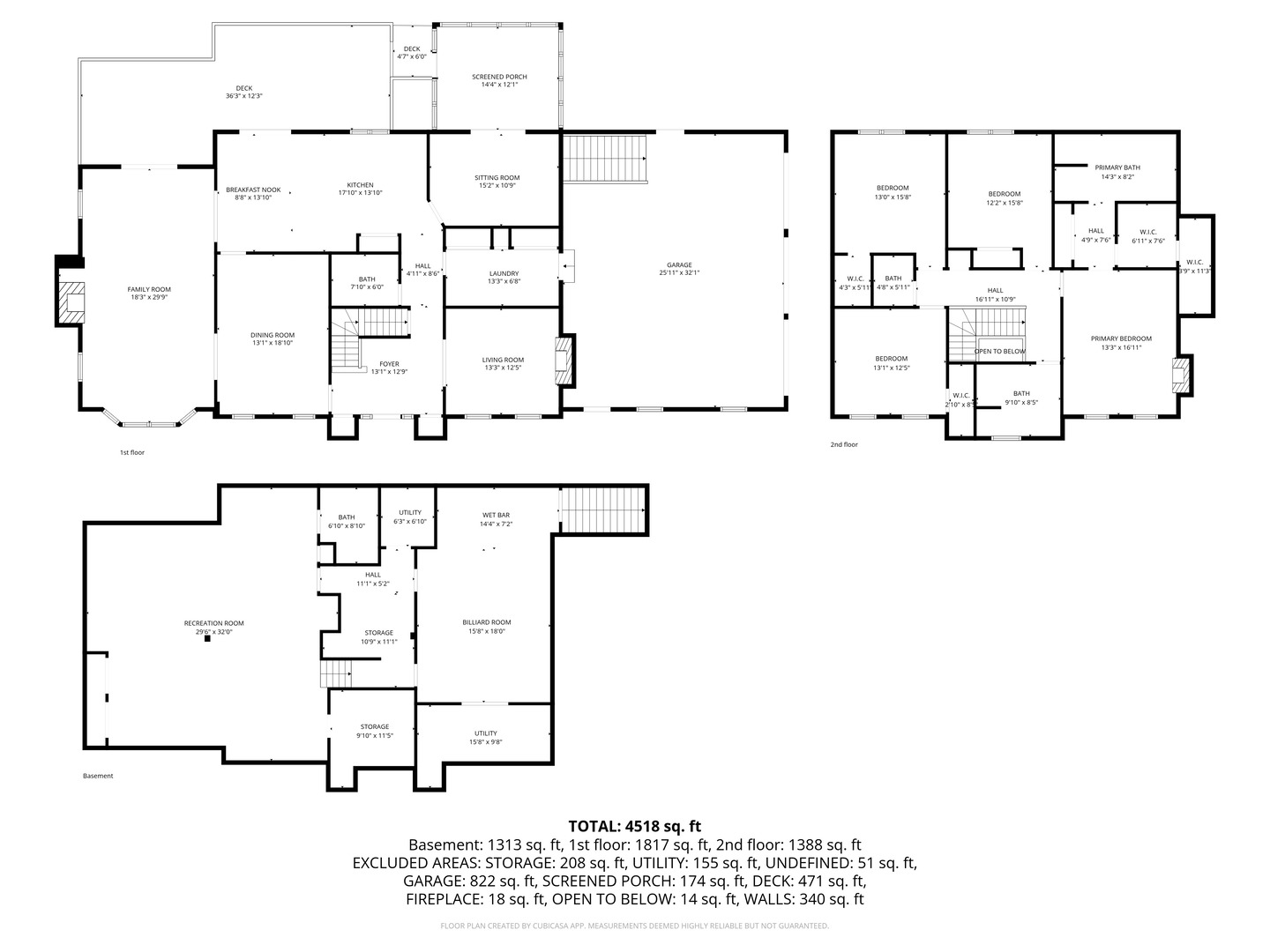
Set on a beautifully wooded lot of more than one acre in the highly desirable neighborhood of Steeple Run, this custom-built home offers exceptional space, character, and timeless craftsmanship. Lovingly maintained by its original owners for many years, the home has been well cared for and thoughtfully preserved, providing a solid foundation for its next chapter. Inside, you’ll find generous living spaces designed for comfort and gathering. The impressive great room features soaring vaulted ceilings and one of three fireplaces, creating a warm and inviting centerpiece for the home. A bright sunroom and relaxing screened porch allow you to enjoy the surrounding nature throughout the seasons, while the expansive deck provides the perfect space for outdoor entertaining. The main level also includes a dedicated office, ideal for working from home or quiet study. Upstairs, four spacious bedrooms are complemented by two full bathrooms, along with a unique vanity and sink area-perfect for busy mornings or a convenient makeup station for teenagers. The fully finished basement expands the living space even further with another full bathroom and plenty of room for recreation, hobbies, or guests. Additional highlights include partial brick construction, a three-car garage, and major mechanical updates including a new furnace and air conditioning system installed in 2025. While the home would benefit from cosmetic updates, it has been exceptionally maintained and offers incredible potential to create something truly special. With its rare combination of a large wooded lot, thoughtful layout, and quality construction, this is a wonderful opportunity to own a truly great home in a sought-after location.
- Principal and Interest
- Property Tax
- HOA fee
- Private Mortgage Insurance
















































