Overview
- 58661
- Property ID
- Updated On:
- March 31, 2026
- Independent Homes
- Category
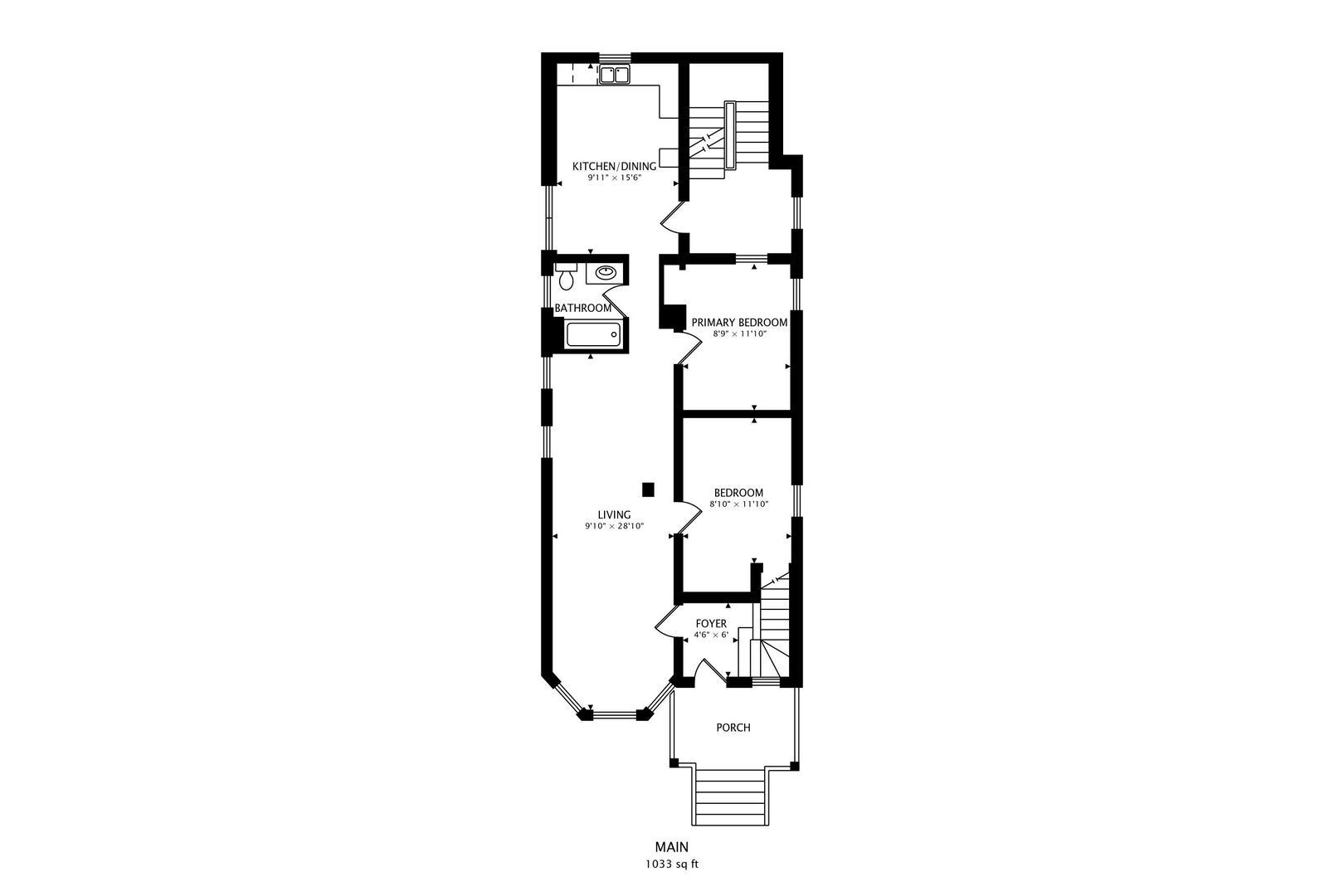
- 3
- Bedrooms
- 2
- Bathrooms
- 2,628 ft2
- Property Size
Description
Endless potential in a prime Irving Park location. This 3-bedroom, 2-bath property offers 2,628 sq ft of living space on a 3,750 sq ft corner lot and is ready for a full gut renovation. Ideal for investors or buyers looking for a value-add project in a rapidly appreciating area. While the home needs extensive work, it offers great upside given its location and surrounding development. The corner lot allows for flexible design options and includes space for a future garage. Whether you’re an experienced renovator or a first-time buyer ready for a big project, this home is your chance to restore and re-imagine a Chicago property. Conveniently located on Montrose Avenue, building a primary access on Avers would be next door to new construction that recently sold for over $850,000. Lot and square footage estimates based on public records. This is an estate sales and being Sold as-is
- Principal and Interest
- Property Tax
- HOA fee
- Private Mortgage Insurance


































