Overview
- 288394
- Property ID
- Updated On:
- April 18, 2026
- Independent Homes
- Category
- 2
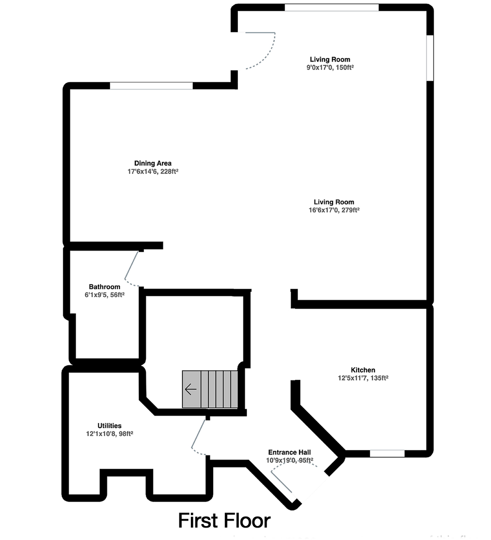
- Bedrooms
- 3
- Bathrooms
- 1,587 ft2
- Property Size
Description
BRAND NEW MIDDLE UNIT 2-STORY 2 BEDS + LOFT / 2.1 BATHS SLAB TOWN HOUSE AVAILABLE IN LATE DECEMBER 2025 WITH JOHNSBURG SCHOOLS! 6 Plans to Choose from including Three Ranch Style Town Houses and Three Two Story Town Houses. TOWNHOUSE IS LOCATED IN A PLANNED URBAN DEVELOPMENT (PUD) AND IS APPROVED FOR FHA, VA AND CONVENTIONAL FINANCING! Tucked away in a corner of scenic McHenry county, Remington Grove boasts quality new townhomes in Johnsburg. This is a beautiful area that still maintains its small town charm. Great schools! 77 NEW CONSTRUCTION LUXURY TOWN HOUSES TO BE BUILT!
- Principal and Interest
- Property Tax
- HOA fee
- Private Mortgage Insurance




































