Overview
- 288287
- Property ID
- Updated On:
- April 18, 2026
- Independent Homes
- Category
- 2
- Bedrooms
- 3
- Bathrooms
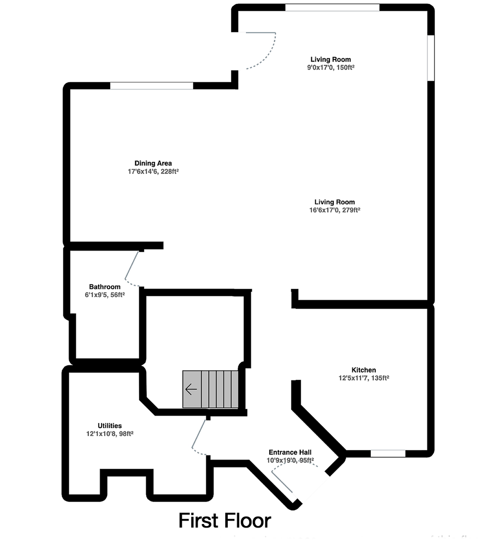
- 1,587 ft2
- Property Size
Description
BRAND NEW MIDDLE UNIT 2-STORY 2 BEDS + LOFT / 2.1 BATHS SLAB TOWN HOUSE AVAILABLE IN LATE DECEMBER 2025 WITH JOHNSBURG SCHOOLS! 6 Plans to Choose from including Three Ranch Style Town Houses and Three Two Story Town Houses. TOWNHOUSE IS LOCATED IN A PLANNED URBAN DEVELOPMENT (PUD) AND IS APPROVED FOR FHA, VA AND CONVENTIONAL FINANCING! Tucked away in a corner of scenic McHenry county, Remington Grove boasts quality new townhomes in Johnsburg. This is a beautiful area that still maintains its small town charm. Great schools! 77 NEW CONSTRUCTION LUXURY TOWN HOUSES TO BE BUILT!
Bathrooms
2
Bedrooms
3
Climate Control
Air Conditioning
Heating
Floor Area
1,000-2,000 sqft
Garden
Yes
Parking
Garage
Other Features
Asphalt
Attached
Cats OK
Central Air
Circuit Breakers
CO Detectors
Concrete Perimeter
Dishwasher
Disposal
Dogs OK
Forced Air
Garage Door Opener
Garage Owned
In Unit
In-Unit Laundry
Natural Gas
New Construction
Patio
Public
Public Sewer
Range
Shared Laundry
Vinyl Siding
Washer Hookup
$1,726.40
per month
- Principal and Interest
- Property Tax
- HOA fee
- Private Mortgage Insurance
$ 1,139.90
Similar Listings
Featured
For Sale
1877 Banbury Road, Inverness, IL
$2,495,000
Beds:
6Baths:
10Size:
9,086 ft2
Set on lush, private grounds in Inverness, this one-of-a-kind multigenerational estate del ...
Featured
For Sale
3288 Wildlight Road, Aurora, IL
$469,476
Beds:
2Baths:
2Size:
1,625 ft2
Welcome to Lincoln Prairie, our newest 55+ community. It's all about the lifestyle. We did ...




































