Overview
- 344309
- Property ID
- Updated On:
- April 20, 2026
- Independent Homes
- Category
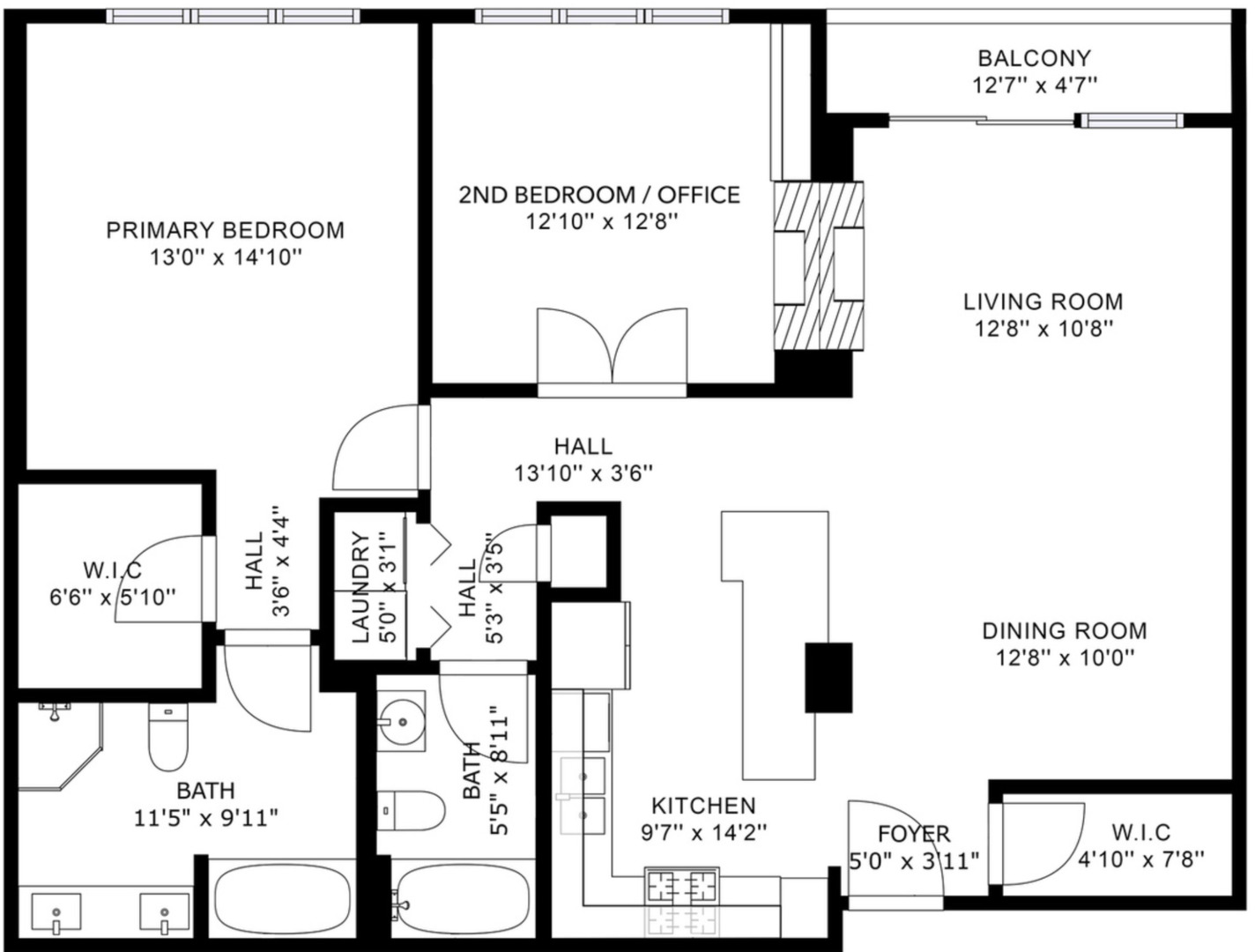
- 2
- Bedrooms
- 2
- Bathrooms
- 1,306 ft2
- Property Size
Description
Experience the perfect blend of luxury and convenience in this stunning, fully upgraded 2-bedroom, 2-bathroom condo in the heart of vibrant Mount Prospect. Bathed in natural light from its desirable south-facing orientation, the home features soaring 9′-9″ ceilings that enhance the meticulously maintained interior and high-end finishes. The open-concept layout flows seamlessly from the gourmet kitchen to the spacious living areas and private balcony, offering an ideal setting for both relaxation and sophisticated entertaining. Designer touches throughout are complemented by the ultimate convenience of a deeded garage parking space and a private storage room. Located just steps from the Metra station, local boutiques, and gourmet dining, this move-in-ready gem offers an unparalleled opportunity for sophisticated, maintenance-free living in the center of it all.
- Principal and Interest
- Property Tax
- HOA fee
- Private Mortgage Insurance

























