Overview
Description
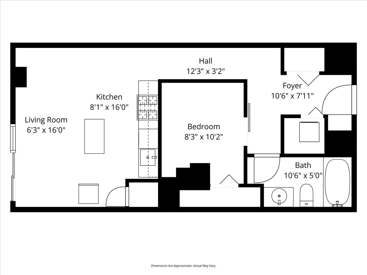
Sophisticated loft-style residence available in the heart of River North. Located in the luxury full-amenity building, Gallery 400, this home offers a seamless open-concept kitchen, living, and dining area-ideal for both everyday living and entertaining. Floor-to-ceiling windows flood the space with natural light, highlighting hardwood floors and a thoughtfully designed interior. The kitchen features stainless steel appliances, granite countertops, and ample cabinetry. The lofted bedroom adds character, while the updated bathroom and in-unit washer and dryer provide everyday convenience. Unit has been freshly painted. Full-amenity building with 24-hour door staff and fitness center. Rent includes cable, high-speed internet, water, and trash. Garage parking available for rent within the building. Unbeatable location in one of Chicago’s most vibrant and sought-after neighborhoods-just steps from River North’s top restaurants and nightlife, including Gilt Bar and Erie Cafe, along with shopping, parks, and public transit.
















