Overview
- 105689
- Property ID
- Updated On:
- April 3, 2026
- Independent Homes
- Category
- 3
- Bedrooms
- 3
- Bathrooms
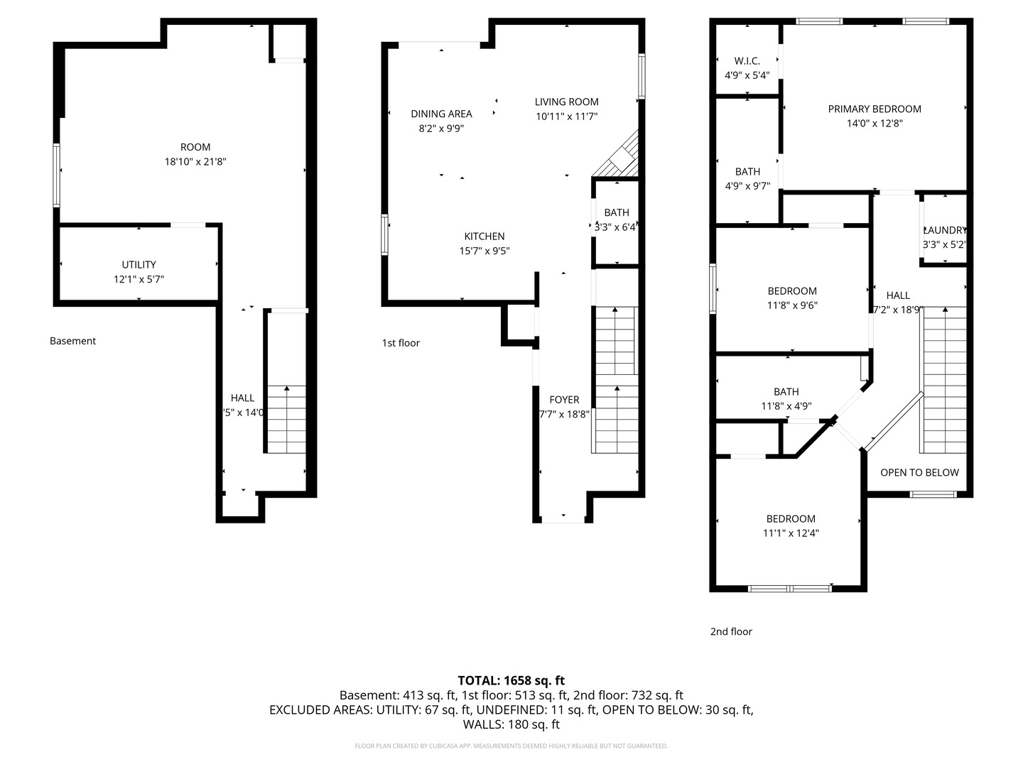
- 1,376 ft2
- Property Size
- 0 ft2
- Property Lot Size
Description
Welcome to this stunning 3-bedroom, 3-bathroom, 2-story home perfectly situated on a corner lot in a quiet cul-de-sac. This home boasts an open floor plan, beautiful bamboo java hardwood floor and a cozy gas fireplace in the living room, creating a warm and inviting atmosphere. The dining room opens to a spacious deck, overlooking a large backyard, perfect for entertaining or relaxing outdoors. Upstairs, you’ll find the primary suite, complete with a walk-in closet and a private ensuite bathroom. Two additional bedrooms, a full bathroom, and a convenient upstairs laundry complete the second floor. The finished basement offers additional living space, ideal for a home office, gym, or recreation room. The home also includes a 2-car attached garage for your convenience. Close to interstates, shopping, schools and dining this home is a must-see! Recent updates, per seller, include a new roof and furnace in 2025 and a water heater replaced in 2023.
- Principal and Interest
- Property Tax
- HOA fee
- Private Mortgage Insurance



























