Overview
- 272004
- Property ID
- Updated On:
- April 15, 2026
- Independent Homes
- Category
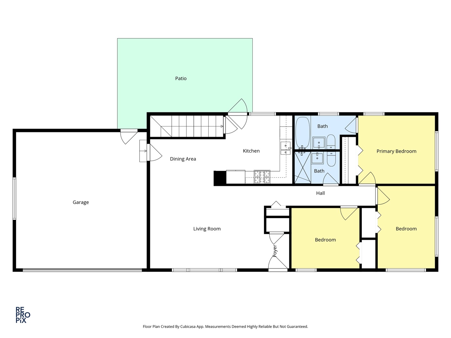
- 3
- Bedrooms
- 2
- Bathrooms
- 1,963 ft2
- Property Size
Description
Move-in ready ranch home in Des Plaines on a desirable corner lot in a great, quiet neighborhood, offering a rare combination of updated condition, flexible space, and peace of mind. Located in a non-flood zone (a major advantage in Des Plaines), this home eliminates one of the biggest concerns buyers have in the area. Designed for practicality, the home features everything you need on the main level without requiring stairs, making daily living simple and accessible. Inside, you’ll find a bright, open layout with hardwood floors, fresh paint, and strong natural light, along with an updated kitchen with stainless steel appliances and ample cabinet space that flows well for both everyday use and entertaining. The main level bedrooms are well-sized and functional, while the fully finished basement adds valuable additional living space, including a 4th bedroom with a full egress window, making it a legal bedroom ideal for a guest suite, in-law arrangement, private office, or extended living setup. The backyard and patio offer a comfortable outdoor space for relaxing or hosting, and the attached two-car garage with ample parking adds everyday convenience. Major updates have already been completed, including windows, bathrooms, and overall maintenance, making this a true turnkey home where you simply bring your furniture and personal touch. Conveniently located near I-90, I-294, Metra, shopping, restaurants, and O’Hare Airport, this home offers both accessibility and a quiet residential setting, making it a strong option for buyers looking for a well-kept home with real usability and long-term value.
- Principal and Interest
- Property Tax
- HOA fee
- Private Mortgage Insurance






















