Overview
- 81961
- Property ID
- Updated On:
- April 2, 2026
- Independent Homes
- Category
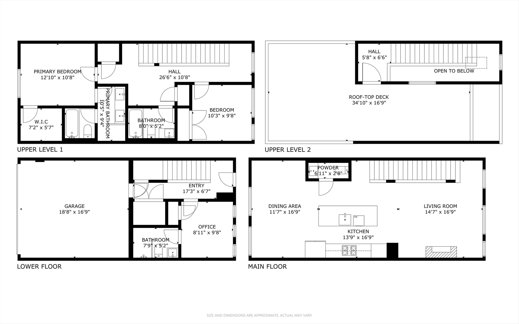
- 3
- Bedrooms
- 4
- Bathrooms
- 1,950 ft2
- Property Size
Description
Welcome to AVNDL Estates, a modern residential enclave set within one of Chicago’s most historic and vibrant neighborhoods-Avondale. Developed by award-winning Noah Properties and thoughtfully designed by Lisek Interiors, this private, gated community features 52 luxury townhomes ranging from approximately 1,950 to 4,250 square feet, each meticulously curated for contemporary living. Every residence offers the space, privacy, and security of single-family living, complete with a private gated front yard, expansive rooftop deck, attached two-car garage, and secure entry. This exceptional, sun-drenched 3-bedroom, 3.1-bath home spans over 1950 square feet and showcases refined finishes throughout, including custom European cabinetry, a chef-inspired kitchen with oversized island and stainless-steel appliances, bespoke built-ins, a fireplace, spa-like bathrooms, and a private rooftop retreat ideal for entertaining or relaxing. Residents enjoy an impressive suite of amenities just steps from their door, including outdoor grilling and dining areas, a fenced dog run, pet grooming station, and a state-of-the-art indoor fitness center equipped with full weight and cardio equipment, private changing rooms, and multiple 60″ TVs. Move-in ready and fully outfitted with custom closets and neutral window treatments throughout, this home presents a rare opportunity to experience elevated urban living in a secure, thoughtfully designed community. Explore the property in 3D-click the 3D button to take a virtual tour and experience every detail firsthand.
- Principal and Interest
- Property Tax
- HOA fee
- Private Mortgage Insurance




































