Overview
Description
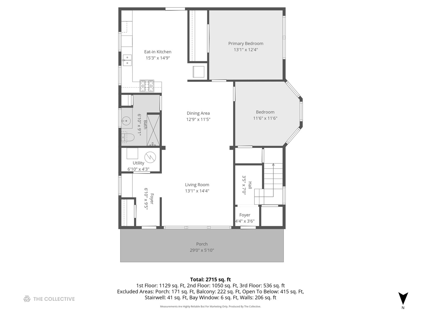
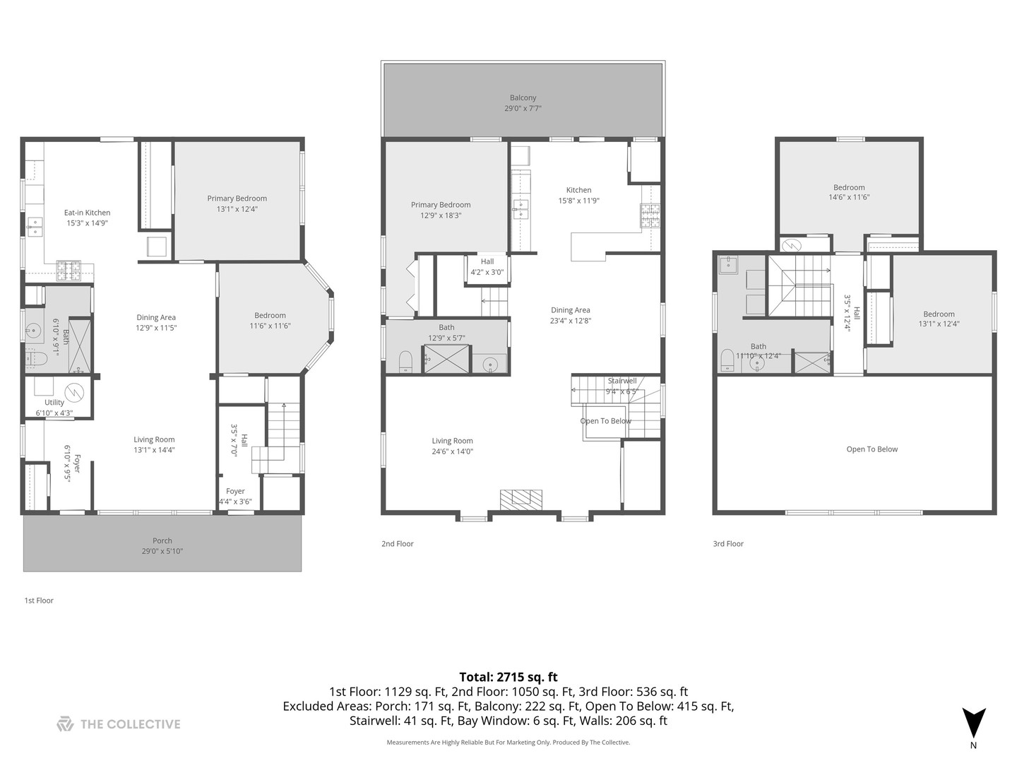
One-of-a-kind opportunity to own a former bakery on a tree-lined street in highly sought after Old Irving Park. This two-flat home features a currently leased 2 bedroom/1 bathroom first floor unit, and a 3 bedroom/2-bathroom owner’s unit. Long time owner of 20 years has lovingly taken care of the building with several recent improvements: roof 5-9 years, many windows under a year old, owner’s unit main floor bathroom renovated, and more. The first-floor unit is impeccably maintained by the tenant whose lease is through March 2028. Be greeted by the 20-foot vaulted ceiling in the second floor owner’s unit. The 3 bedroom duplex up has hardwood floors on the main level with a separate living and dining room, in-unit laundry, and back deck that spans the width of the building. Each unit has their own laundry and storage room. Prime location close to 90/94, Blue Line, both Irving Park Metra and Grayland Metra, Smoque BBQ, Backlot Coffee, and more!
- Principal and Interest
- Property Tax
- HOA fee
- Private Mortgage Insurance




































