4311 N Melvina Avenue, Chicago, IL

$698,000

Overview

  • 307157
  • Property ID
  • Updated On:
  • April 19, 2026
  • 7
  • Bedrooms
  • 3
  • Bathrooms

Description

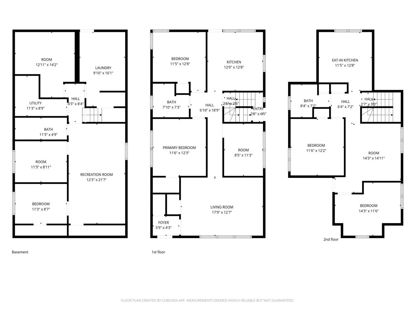
Welcome to 4311 N Melvina Ave, an exceptional investment opportunity in the heart of Portage Park/ Dunning neighborhood. This well appointed 2 flat offers updated interiors across the first floor and finished lower level. The first floor offers a beautifully updated kitchen (2021) with stainless steel appliances, hardwood floors throughout, 3 bedrooms, updated full bath. The second floor residence features 2 bedrooms and a full bath, filled with abundance of natural light that enhance the warm and welcoming living spaces. The finished garden-level in-law suite showcases newer flooring, a beautifully updated bath and freshly painted (2024) offering exceptional flexibility for extended living, guests accommodations, or additional private space. The building also features convenient coin laundry in the lower level. A one-car garage a fully fenced yard, and a cozy patio, this home is perfectly suited for summer gatherings or quiet mornings enjoying coffee outdoors. Home is located minutes from public transit, highways, restaurants, Six Corner shopping and dining. A distinguished property offering the perfect balance of lifestyle, flexibility, and investment potential.

Bathrooms
3
Bedrooms
5+
Climate Control
Heating
Garden
Yes
Parking
Garage
Other Features
Asphalt
Brick
Ceiling Fan(s)
CO Detectors
Concrete Perimeter
Detached
English
Fenced
Garage Door Opener
Garage Owned
Lake Michigan
Natural Gas
Park
Public
Public Sewer
Screens
Sidewalks
Street Lights
Street Paved

Transport
Supermarkets
Schools
Restaurants
Pharmacies
Hospitals

yelp logo

$3,578.78
per month
  • Principal and Interest
  • Property Tax
  • HOA fee
  • Private Mortgage Insurance
$ 2,706.28

Similar Listings

For Sale

717 N Homan Avenue, Chicago, IL

$559,900
Beds:
8
Baths:
3
Exceptional opportunity to own a solid brick 3-flat in the heart of Humboldt Park. This we ...
For Sale

212 E 10th Street, Sterling, IL

$144,900
Beds:
3
Baths:
2
Great Investment or Owner-Occupied Opportunity! Perfect for investors to rent both sides f ...
Information for the property at 4311 N Melvina Avenue, Chicago, IL, 60634 (Property ID: 307157) is deemed reliable but not guaranteed. Property details, pricing, and availability are subject to change without notice. Buyers should independently verify all information before making any real estate decisions.

Compare Listings

Sunita Kakarlapudi