Overview
Description
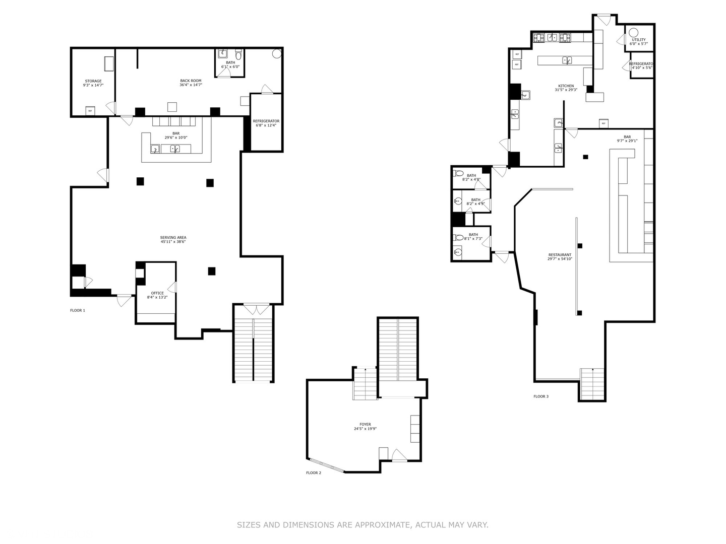
2nd generation Restaurant space with a fully equipped kitchen with 2 commercial stoves (10-burners), commercial grill, 2 fryers, salamander, several prep stations, several ovens and a pizza oven. Lower level banquet room with its own commercial bar, Individually-controlled HVAC unit, wine cellar, separate secure liquor cage, several walk-in coolers & freezers, dry pantry, several ice makers, black iron, Move-in condition. 15′ ceilings in entry, audio system. Located on 1st Floor (+/- 4,082 sf) and garden level (+/- 2,500 sf). 600 AMP electric. Office has a safe. Former tenant had an outdoor patio setup. Furniture in photos stays with the space. Tenants pays gas cost of $ 1.25/sf for kitchen gas














