Overview
- 168827
- Property ID
- Updated On:
- April 13, 2026
- Independent Homes
- Category
- 3
- Bedrooms
- 2
- Bathrooms
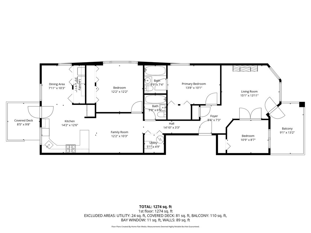
- 1,274 ft2
- Property Size
Description
This Sheridan Park condo is a true breath of fresh air, blending timeless character with thoughtful updates throughout. Rich hardwood floors set the tone, while vintage details, like the beautifully refinished peer mirror at the entry, add warmth and charm. The sun-filled living room feels both inviting and spacious, centered around a classic wood-burning fireplace and opening to a generous brick terrace overlooking a picturesque, tree-lined street. A versatile third bedroom, accessed through elegant French doors, offers excellent flexibility, ideal as a private office, guest room, or creative space, complete with great natural light and ample closet storage. The expansive kitchen is designed for both everyday living and entertaining, featuring newer appliances, a breakfast bar, and a large eat-in area, along with pantry and in-unit laundry. It flows seamlessly into a comfortable family room, creating an easy, connected living space. The primary suite comfortably accommodates a king-sized bed and includes an en suite bath, while the second bedroom is equally spacious and bright. Flexible living areas throughout make this home as functional as it is inviting. Outdoor space is just as appealing, with a sizable deck off the kitchen leading down to a shared grassy yard and a one-car garage. Additional storage in the basement adds to the home’s convenience. Tucked on a quiet street yet just moments from Uptown’s vibrant dining and shopping scene, the Red Line, and close to Andersonville, Wrigleyville, Lincoln Square, and the lakefront, this location truly offers the best of city living.
- Principal and Interest
- Property Tax
- HOA fee
- Private Mortgage Insurance

























