Overview
- 472514
- Property ID
- Updated On:
- April 24, 2026
- 2 to 4 Units
- Category
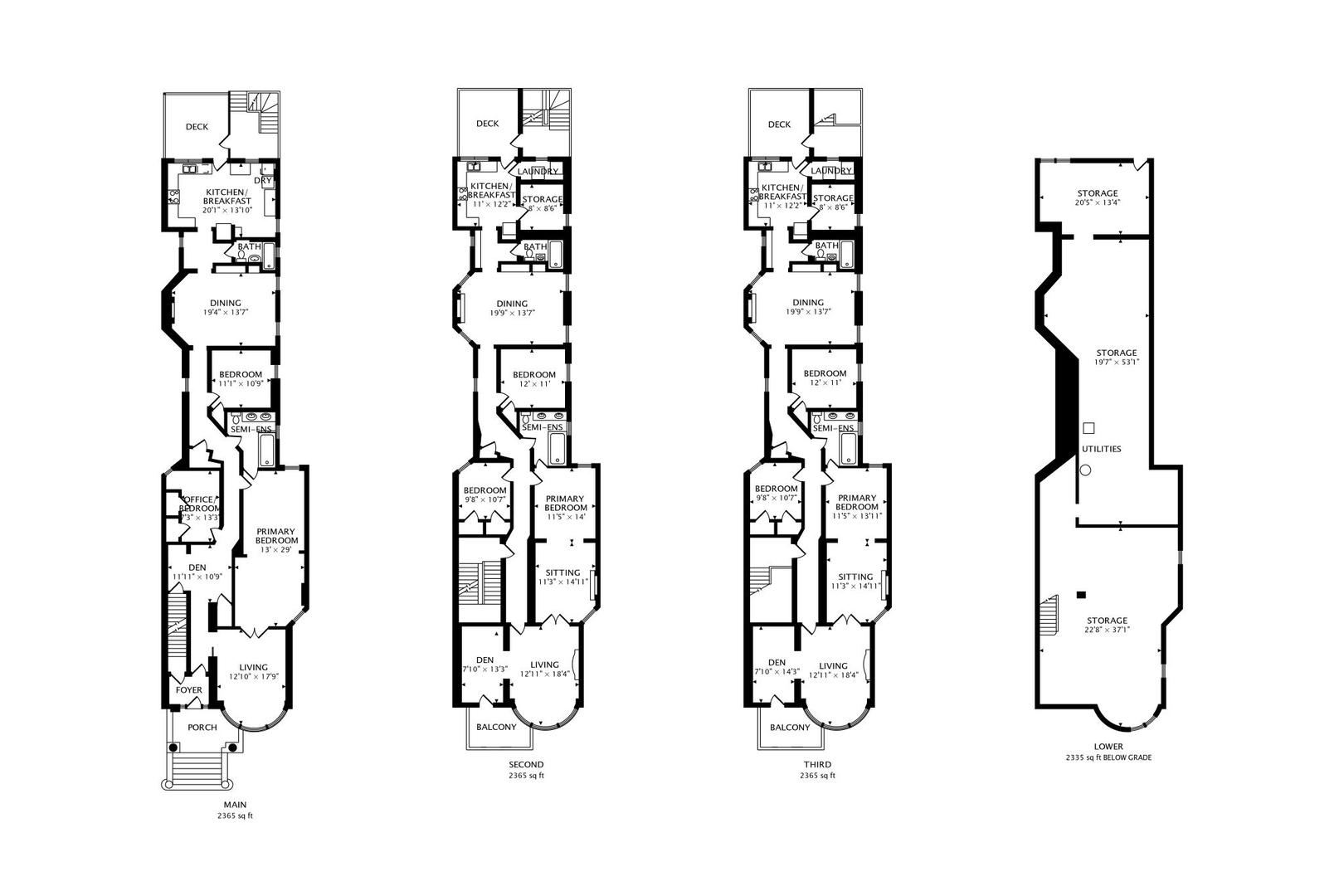
- 9
- Bedrooms
- 6
- Bathrooms
- 0 ft2
- Property Lot Size
Description
Listen up. This isn’t just another multifamily property. This is 7,100+ square feet of pure cash-flowing potential sitting on one of Chicago’s most iconic boulevards. Built in 1898, this 9-bed, 6-bath beauty is a piece of Bronzeville history-and your ticket to serious ROI. Bronzeville crown jewel. We’re talking historic architecture, proximity to downtown, and a neighborhood that’s been on the rise for years. The smart money has already moved in. Are you next? Income-Producing Machine – 9 bedrooms, 6 bathrooms, multiple units. This property is designed to print money. Whether you’re looking to rent, renovate, or reposition, the numbers work.
- Principal and Interest
- Property Tax
- HOA fee
- Private Mortgage Insurance






























































