Overview
- 389862
- Property ID
- Updated On:
- April 22, 2026
- Independent Homes
- Category
- 5
- Bedrooms
- 4
- Bathrooms
- 5,788 ft2
- Property Size
- 1 ft2
- Property Lot Size
Description
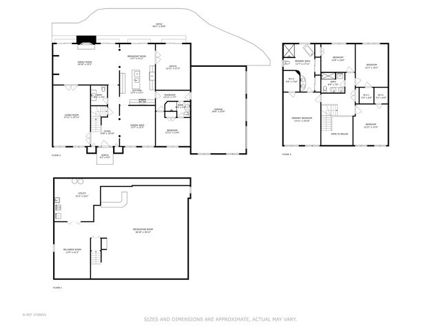
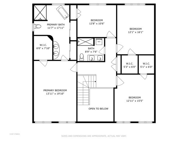
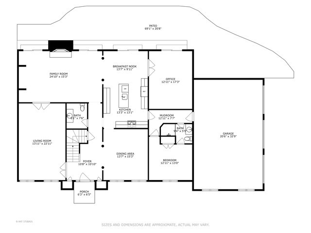
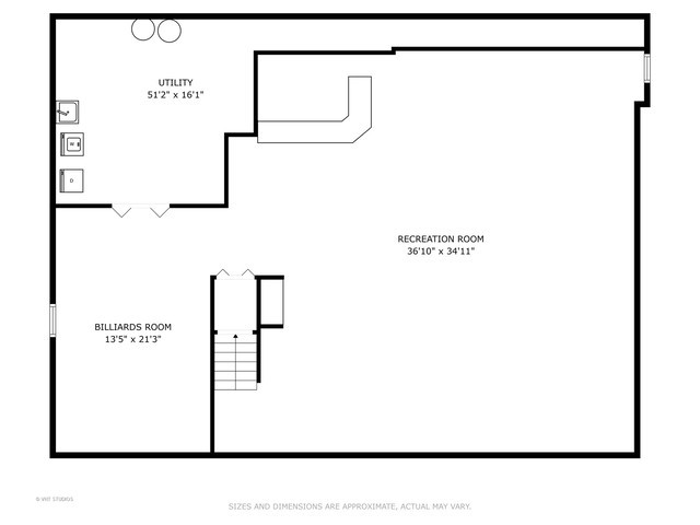
MOVED TO PRIVATE FOR A FEW WEEKS – will be back soon. Set on a lush 1.4-acre parcel adjacent to Deerpath Golf Course, this classic brick Georgian in East Lake Forest offers exceptional privacy, timeless architecture, and extensive modern updates. With nearly 5,800 square feet of finished living space (including the basement), the home has been thoughtfully renovated to feel current and move-in ready. The main level balances formal and casual living, featuring elegant living and dining rooms, a generous family room anchored by gas fireplace, and expansive Andersen 400-series patio doors that connect seamlessly to the outdoors. Great circular flow on the first floor. A light-filled private office with built-ins, French doors, and skylights provides a perfect work-from-home retreat. A first-floor bedroom with a full bath offers ideal flexibility for guests, an au pair, or multigenerational living. Upstairs, the second level includes four spacious bedrooms, three with walk-in closets, along with two updated bathrooms and a LG washer and dryer, one of two laundry areas in the home. The primary suite is a true sanctuary, featuring a spa-inspired bath with soaking tub, oversized shower, refined hardware, and abundant closet space including dual additional closets. The fully finished lower level expands the living area with a large recreation room, bar area, and game area (pool table included), all finished with engineered flooring. A second laundry area and the opportunity to add another bedroom and bathroom make this space exceptionally versatile. A separate storage area was recently added. At the heart of the home is a chef’s eat-in kitchen, designed by Studio 41 and outfitted with premium Omega cherry cabinetry, granite counters, solid granite sink, and top-tier appliances including a Viking range with high-capacity hood, new Sub Zero fridge, new Maytag dishwasher, and dual-temperature wine cooler. Oversized patio doors open to a new concrete patio surrounded by professionally landscaped gardens and vibrant flower beds. Recent improvements are extensive and include refinished hardwood floors in a modern smokey gray tone, updated millwork and French doors, new solid-core interior doors and hardware, upgraded lighting throughout including a foyer chandelier, new baseboards, new stair runner, rebuilt code-compliant egress window, updated stair spindles, refreshed landscaping with underground sprinklers, and epoxy-coated three-car attached garage. Two expansive side yards-each approximately half an acre-offer exceptional potential for a pool, pool house, or separate in-law residence. Major mechanical updates include new furnaces (2024), new sump pumps (2022), new electrical panel (2023), and more. Located minutes from downtown Lake Forest, the lakefront, library, dining, shopping, and top-rated schools, this home delivers privacy, space, and convenience. Ideal closing in early to mid April with a possession into early/mid June.
- Principal and Interest
- Property Tax
- HOA fee
- Private Mortgage Insurance












































