Overview
- 108280
- Property ID
- Updated On:
- April 3, 2026
- Independent Homes
- Category
- 3
- Bedrooms
- 2
- Bathrooms
- 1,050 ft2
- Property Size
- 0 ft2
- Property Lot Size
Description
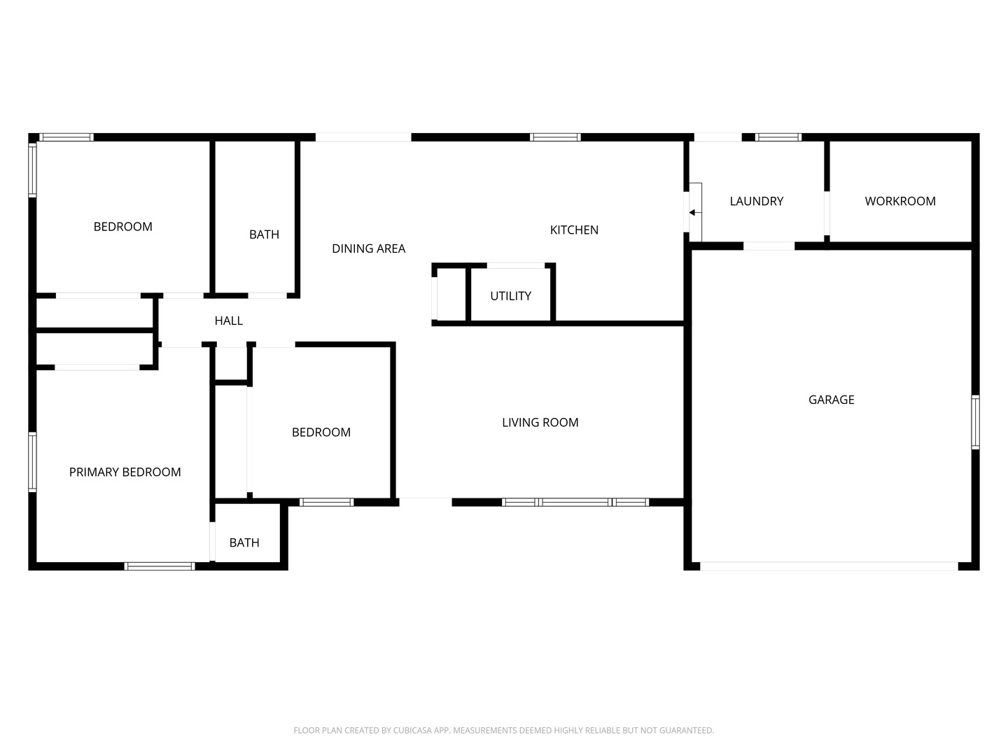
Welcome home to this charming 3 bedroom, 1.1 bath ranch offering comfort and versatility. The property features lots of natural light throughout the home, a dedicated workroom perfect for hobbies, storage, or projects, an attached 2 car garage and large yard with mature trees. Enjoy peace of mind with several key updates, including roof (2016), furnace (2008), water heater (2025), and beautifully refinished hardwood floors (10 years ago). Estate sale, property is being sold as is.
Bathrooms
2
Bedrooms
3
Climate Control
Air Conditioning
Heating
Floor Area
1,000-2,000 sqft
Garden
Yes
Parking
Garage
Other Features
100 Amp Service
1st Floor Bedroom
1st Floor Full Bath
Asphalt
Attached
Ceiling Fan(s)
Central Air
Circuit Breakers
Dryer
Forced Air
Garage Door Opener
Garage Owned
Level
Main Level
Mature Trees
Natural Gas
Public
Public Sewer
Ranch
Range
Refrigerator
Shared Laundry
Street Lights
Street Paved
Vinyl Siding
Washer
Wood
$1,333.07
per month
- Principal and Interest
- Property Tax
- HOA fee
- Private Mortgage Insurance
$ 1,008.07
Similar Listings
Featured
For Sale
3288 Wildlight Road, Aurora, IL
$469,476
Beds:
2Baths:
2Size:
1,625 ft2
Welcome to Lincoln Prairie, our newest 55+ community. It's all about the lifestyle. We did ...
Featured
For Sale
435 N Michigan Avenue #503, Chicago, IL
$2,675,000
Beds:
3Baths:
4Size:
3,249 ft2
Tribune Tower Residence offers an amazing opportunity to own a home in one of Chicago's mo ...

































