Overview
- 245300
- Property ID
- Updated On:
- April 19, 2026
- Independent Homes
- Category
- 2
- Bedrooms
- 1
- Bathrooms
- 1,600 ft2
- Property Size
Description
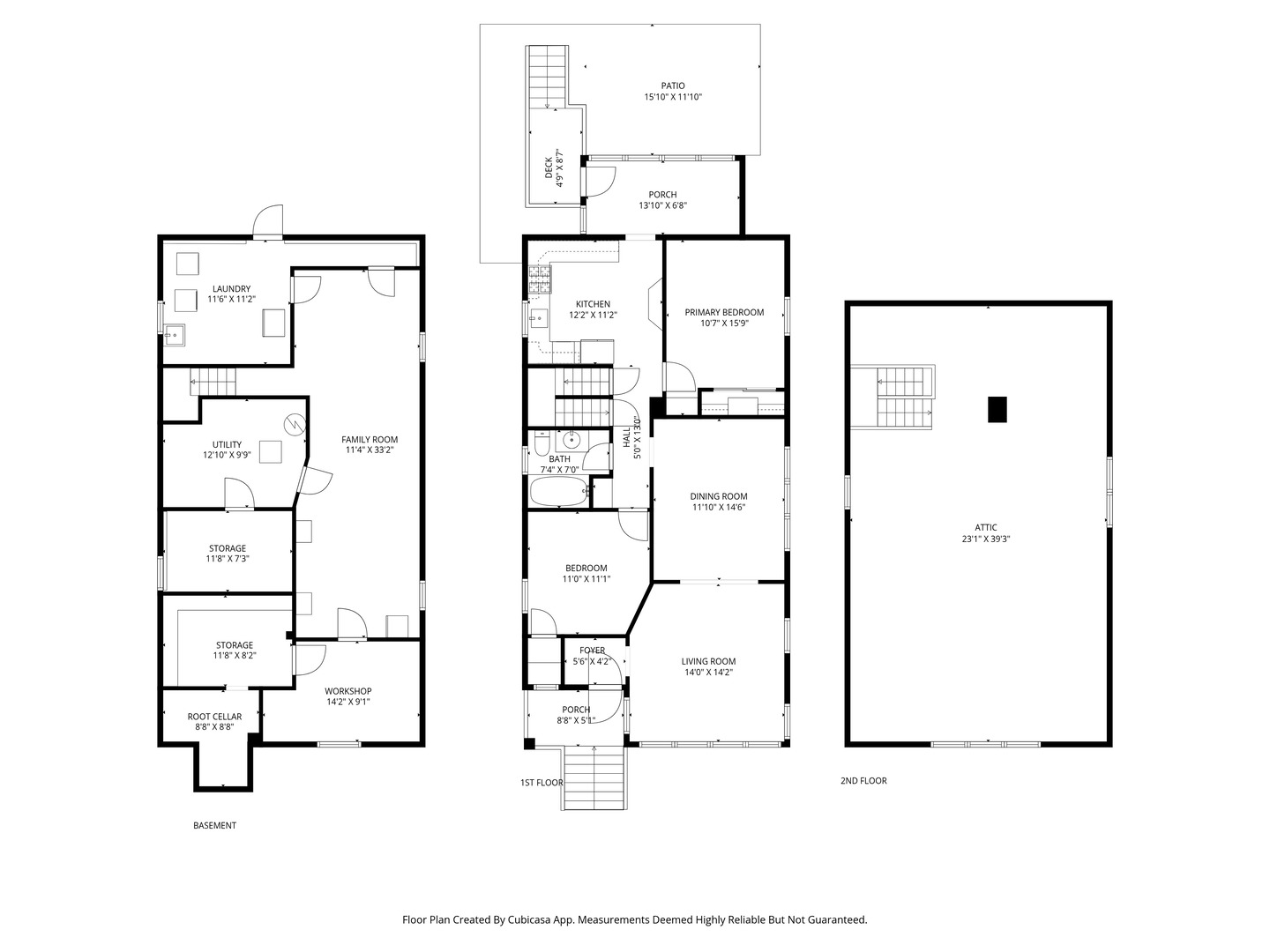
Incredible opportunity to become the proud new owner of this exceptionally well-maintained and heavily improved 2 bedroom, 1 bath bungalow sitting on an oversize lot in the historic North Mayfair neighborhood on Chicago’s far north side. Step inside and be greeted by the bright living room with beautiful unpainted windows, crown moulding and built-ins that preserve the original intended character of the home. An adjoining formal dining room continues to impress with millwork reflecting the quality craftsmanship of the time. A hallway leads to the two main level bedrooms separated by a fully renovated bathroom. From there you move into a completely renovated kitchen with new cabinetry, Corian solid surface countertops and all stainless appliances, connecting to a fully renovated rear enclosed and heated porch looking out into the well manicured back yard. As above, so below, the basement has also been remade into a comfortable additional living area, with dedicated additional spaces for storage, utilities, laundry and a workshop. In addition what has already been described, the current owners have undertaken a substantial and painstaking rehabilitation of the property over the past 10 years. Other improvements include, but are in no way limited to: new roof and gutters for house and garage, new chimney, new siding on garage, all concrete around house including stairs rebuilt, plumbing and electrical replaced, new heating system (2024), and a host of other improvements which can be provided upon request. Upstairs you will find an exceptionally tall and spacious unfinished second floor which the owners envisioned remaking into an enviable primary suite. Rough plumbing and existing roof-lines are ready for the new owners to fully realize the vision. The home is served by a two car garage accessed via the alley and is conveniently located near the 90/94 expressways, Blue Line El and Metra commuter rail stations, parks, forest preserves, restaurants, shopping and sought after schools.
- Principal and Interest
- Property Tax
- HOA fee
- Private Mortgage Insurance

































