Overview
- 240504
- Property ID
- Updated On:
- April 14, 2026
- Independent Homes
- Category
- 4
- Bedrooms
- 3
- Bathrooms
- 2,208 ft2
- Property Size
- 0 ft2
- Property Lot Size
Description
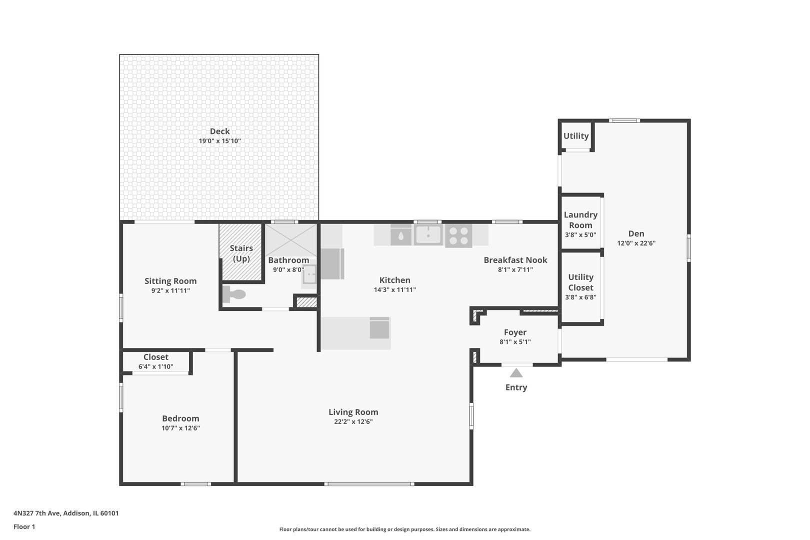
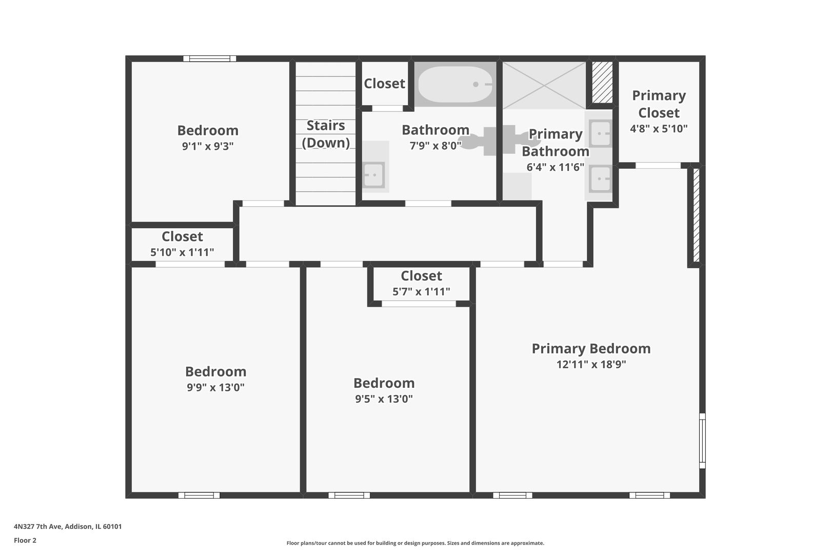
This beautifully renovated two-story home offers 4 spacious bedrooms and 3 full bathrooms approximately 2,208 sqft of modern living space. Step inside to a sun-lit foyer and a large living room with can lights, complemented by new laminate floors on the main level. The open kitchen features white cabinets, quartz countertops, and upgraded stainless steel appliances, while a first-floor bedroom and full bath provide convenience. Upstairs, you’ll find 3 generous bedrooms, including a master suite with an attached bath and walk-in closet, along with a hallway bath with a new double vanity and stylish tile work. The spacious backyard with a wooden deck is ideal for summer entertaining, and a large main-floor work area with washer and dryer adds practicality. The home also includes a 2-car garage, new roof, and gutters, making it a perfect place to call home.
- Principal and Interest
- Property Tax
- HOA fee
- Private Mortgage Insurance





















































