Overview
- 362539
- Property ID
- Updated On:
- April 21, 2026
- Independent Homes
- Category
- 2
- Bedrooms
- 1
- Bathrooms
- 1,400 ft2
- Property Size
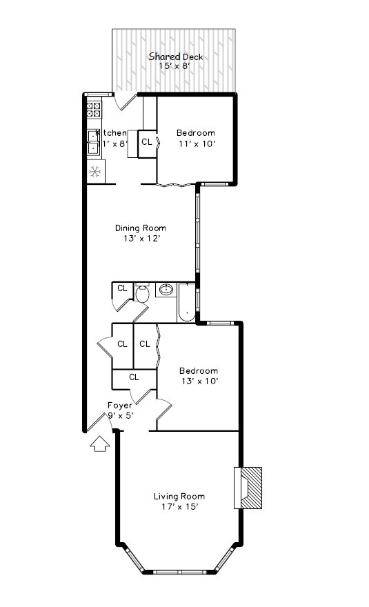
Description
Top floor 2 bedroom, 1 bathroom condo in the heart of Ravenswood with one exterior parking space, set within a charming all brick boutique building on a quiet, tree lined street. This well maintained and sun filled home offers a timeless blend of vintage character and thoughtful modern updates, featuring hardwood floors throughout, custom closets, and a private side by side washer and dryer, along with additional storage and access to a shared deck. The updated kitchen is both stylish and functional with 42 inch cabinetry, quartz countertops, and stainless steel appliances, flowing into a spacious layout with a dedicated dining area and an inviting living room centered around a fireplace. Enjoy easy access to the vibrant Ravenswood, Lincoln Square, and Andersonville retail and dining corridors, Mariano’s grocery store, and Winnemac Park. Super convenient transportation options including the Ravenswood Metra, Damen Brown Line CTA, and CTA Damen bus. A warm and welcoming home that offers the perfect balance of neighborhood charm, everyday convenience, and city living. Kitchen renovated 2024, Refrigerator 2024, Dishwasher 2024, Most windows 2021.
- Principal and Interest
- Property Tax
- HOA fee
- Private Mortgage Insurance

















