Overview
- 127609
- Property ID
- Updated On:
- April 2, 2026
- Independent Homes
- Category
- 7
- Bedrooms
- 5
- Bathrooms
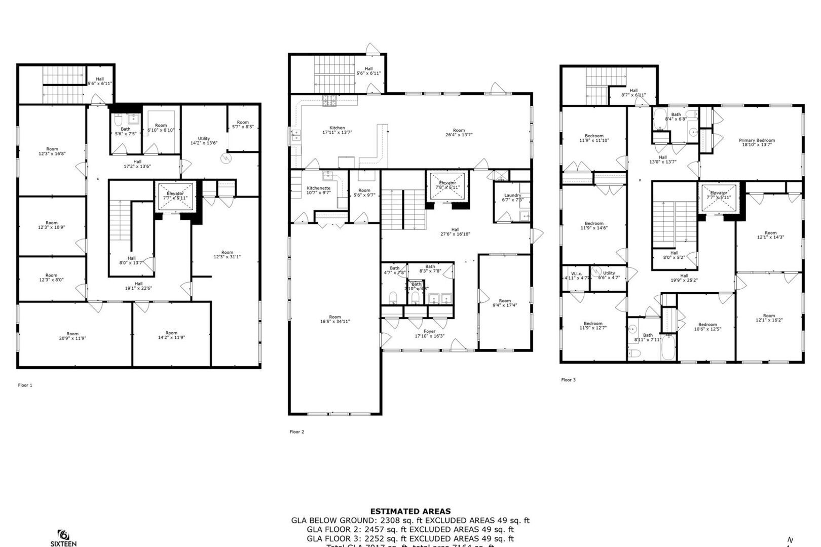
- 4,709 ft2
- Property Size
Description
Vacant 14 room building designed in a group home style. Recent updates include interior finishes and mechanicals. Walking distance to UIUC and downtown Champaign. Ideal for lease-up or repositioning.
Bathrooms
3+
Bedrooms
5+
Climate Control
Air Conditioning
Heating
Floor Area
3,000+ sqft
Swimming Pool
Yes
Other Features
1st Floor Bedroom
1st Floor Full Bath
Cathedral Ceiling(s)
Central Air
Electric
Elevator
Elevator(s)
Fenced
Hardwood
Main Level
Natural Gas
None
Off Alley
Owned
Permit Required
Public
Public Sewer
Ramp - Main Level
See Remarks
Shared Laundry
Storage
Unassigned
Vinyl Siding
Washer Hookup
Similar Listings
Featured
For Sale
352 Bridgeview Court, St. Charles, IL
$420,000
Beds:
3Baths:
3Size:
1,827 ft2
Welcome to 352 Bridgeview Ct., a new townhome only lived in for a few months in the desira ...
Featured
For Sale
807 N Main Street, Glen Ellyn, IL
$175,000
Papa Saverio's Pizza Franchise for Sale - Glen Ellyn, IL Excellent opportunity to acquire ...


























































