Overview
- 307085
- Property ID
- Updated On:
- April 19, 2026
- Independent Homes
- Category
- 2
- Bedrooms
- 3
- Bathrooms
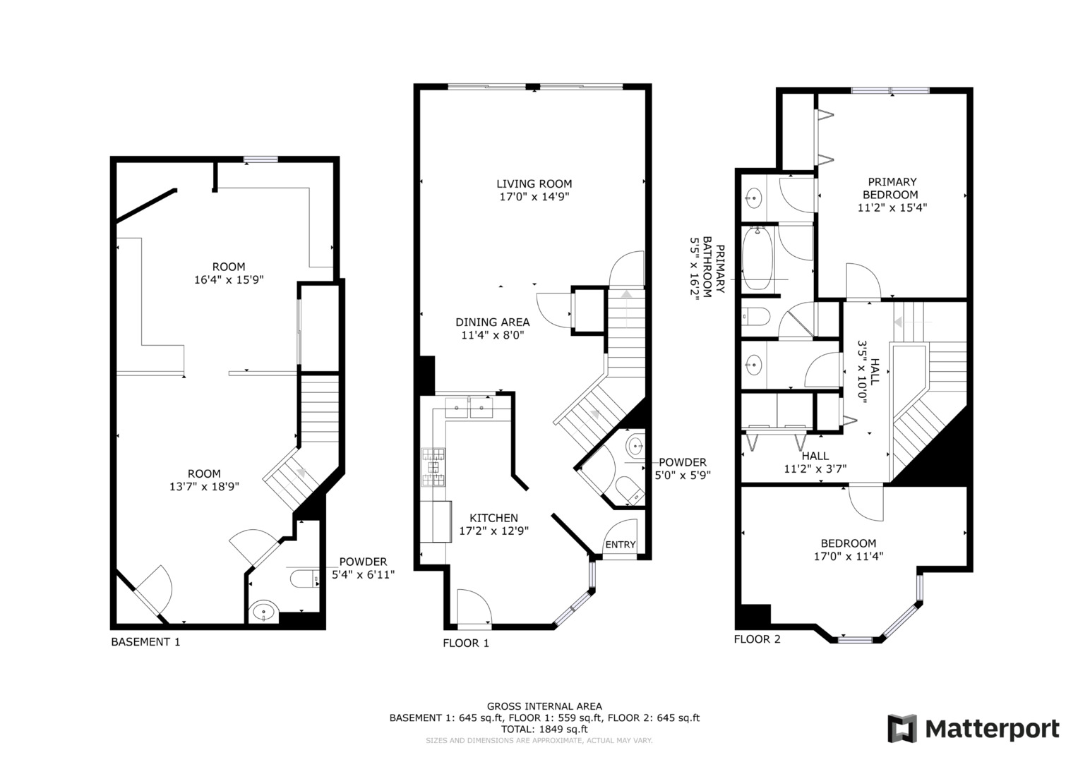
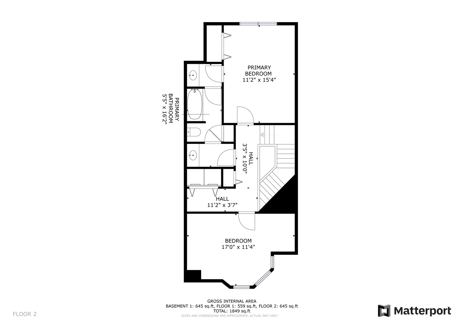
- 1,850 ft2
- Property Size
Description
WOW!! TAKE A 3D TOUR – CLICK ON THE 3D BUTTON AND ENJOY!! OMG! Stunning Oak Lawn Townhome in Eagle Ridge! LOCATION, LOCATION!! This beautifully updated townhome, built in 1995, offers 3 levels of living with 2 Huge Bedrooms! The kitchen features newer appliances. The first floor includes an open concept living room and dining combo & half bath. Enjoy the convenience of second-floor laundry, with both Bedrooms & Shared Master Bath. Basement offers huge rec area for extra living space and Half Bath! 1-car attached Garage & Backyard with patio for Entertaining! Located close to restaurants, shopping, golf course, parks, schools, and highway! This home has it all! Don’t miss out! HURRY!!
Bathrooms
2
Bedrooms
3
Climate Control
Air Conditioning
Heating
Floor Area
1,000-2,000 sqft
Garden
Yes
Parking
Garage
Other Features
Asphalt
Attached
Brick
Cats OK
Central Air
Concrete Perimeter
Dishwasher
Dogs OK
Forced Air
Garage Door Opener
Garage Owned
In Unit
In-Unit Laundry
Microwave
Natural Gas
Open Floorplan
Patio
Public
Public Sewer
Range
Refrigerator
Shared Laundry
Upper Level
Vinyl Siding
$1,585.89
per month
- Principal and Interest
- Property Tax
- HOA fee
- Private Mortgage Insurance
$ 1,017.76
Similar Listings
Featured
For Sale
28W524 Wynn Avenue, West Chicago, IL
$1,695,000
Beds:
7Baths:
7Size:
5,578 ft2
Welcome to this exceptional, rare custom-built estate (2005) offering over 5,500 square fe ...
Featured
For Sale
1147 Steeple View Drive, Long Grove, IL
$1,570,000
Beds:
4Baths:
4Size:
5,480 ft2
Nestled within the prestigious Grove Country Club community and just minutes from charming ...










































