Overview
Description
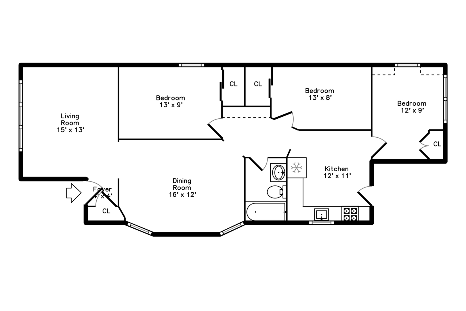
*Multiple offers received, highest and best due, Tuesday, April 28th at 10pm* This attractive Oak Park property has the look of a single-family home but offers the flexibility of a two-unit layout. Either unit could serve as an owner’s home while the other provides rental income, making it a smart option for owner-occupants or investors. Each unit features a large front living room, formal dining room, and three generously sized bedrooms, along with full kitchens with dishwashers. The second-floor kitchen and bath were completely remodeled in 2016, and many appliances in both units have been replaced within the last 2-5 years. A full unfinished basement provides abundant storage and shared laundry. Set on a deep 33 x 170 lot, the property offers plenty of green space along with a rare 3-car garage. Located less than half a block from The Daly Bagel and convenient to the CTA Green Line, parks, OPRFHS and the Oak Park Farmer’s Market and central Oak Park shopping and dining. This friendly neighborhood also has two annual block parties. Located within the boundaries of Whittier Elementary School, this is a rare opportunity that combines flexible living, income potential, and a prime Oak Park location.
- Principal and Interest
- Property Tax
- HOA fee
- Private Mortgage Insurance










































