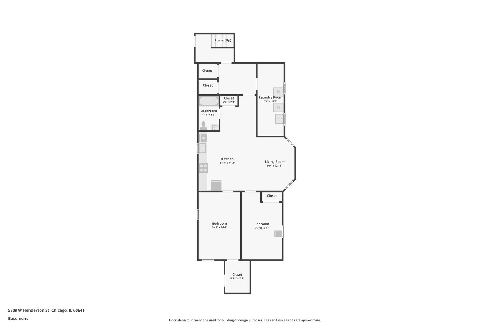
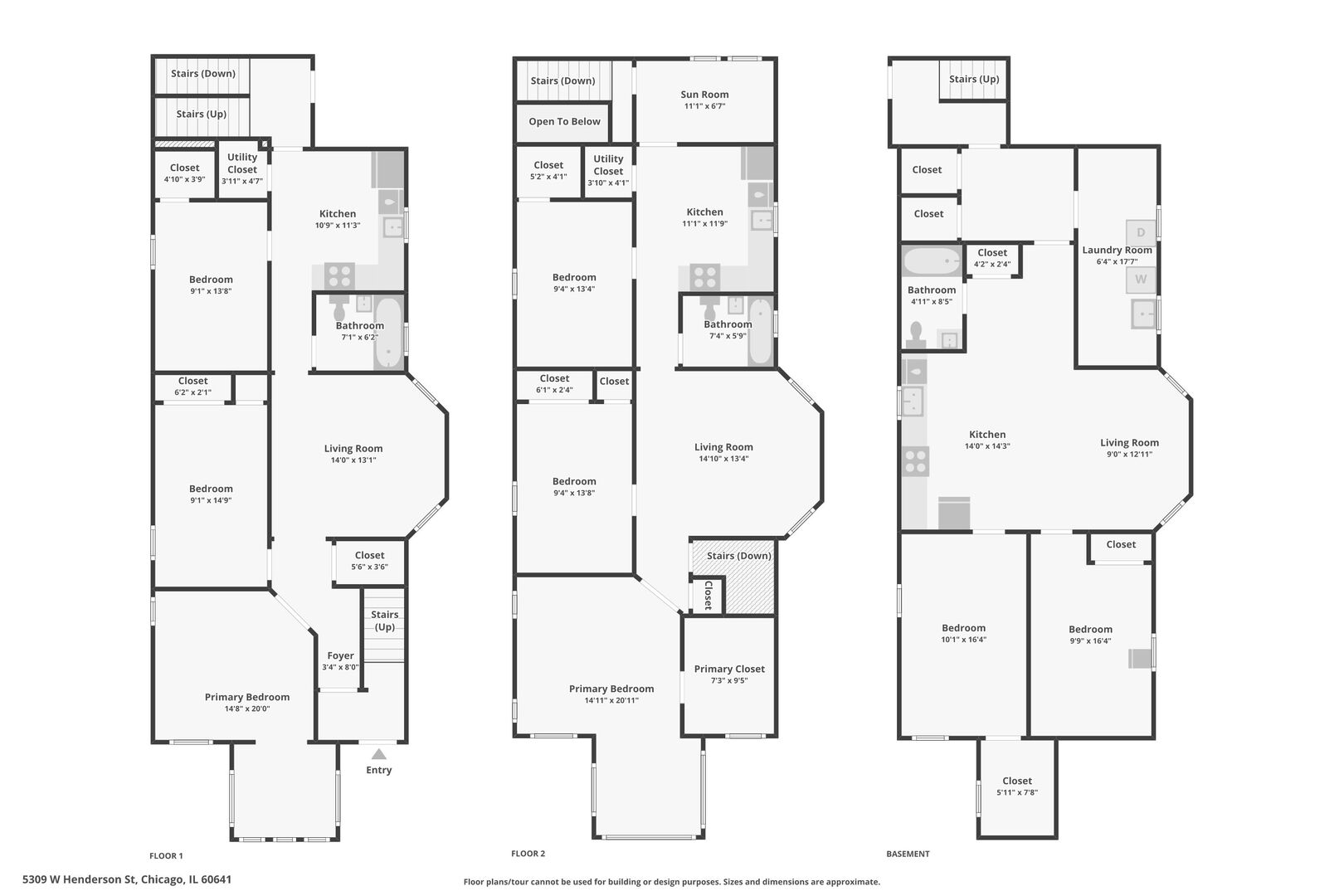
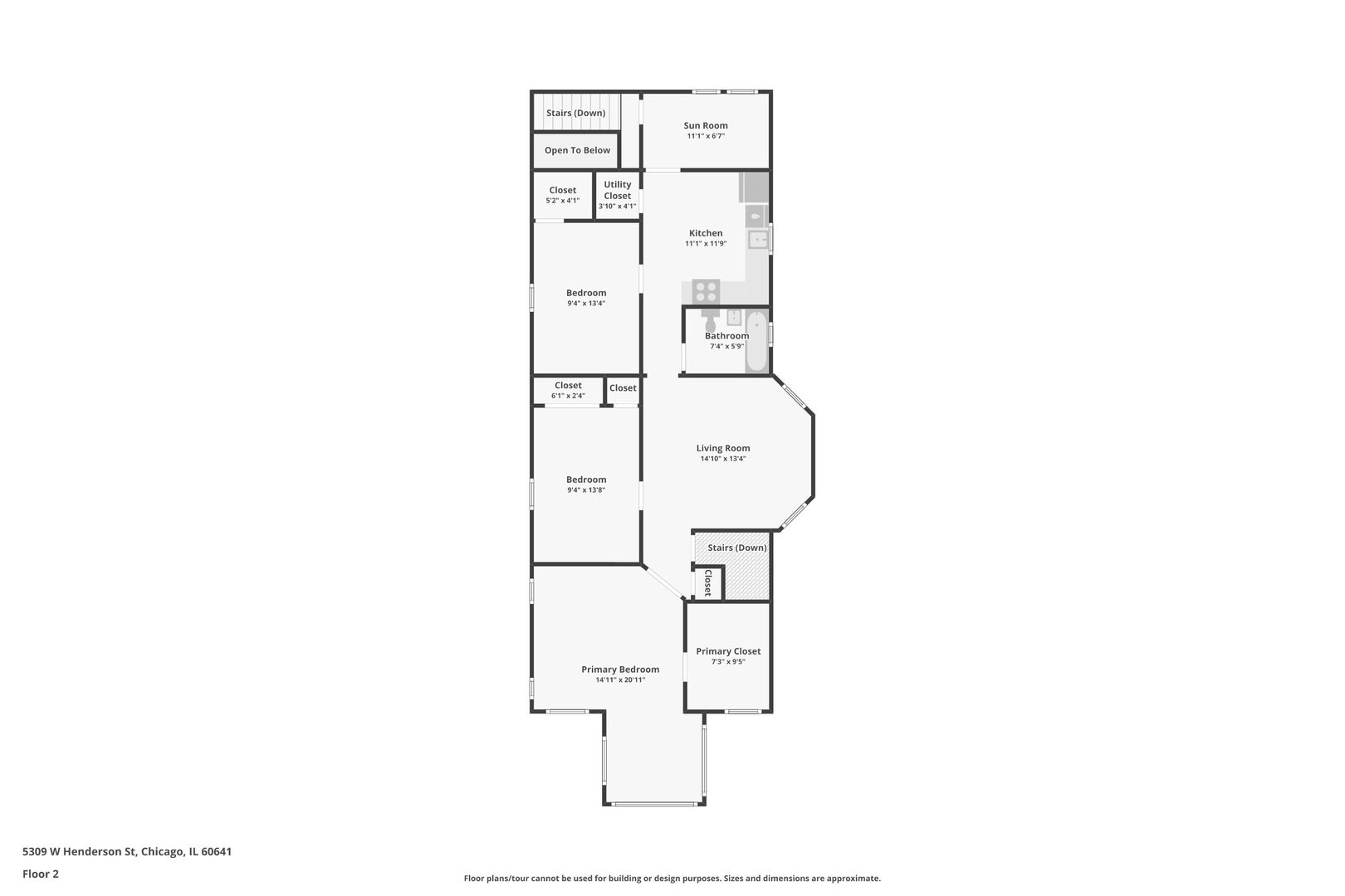
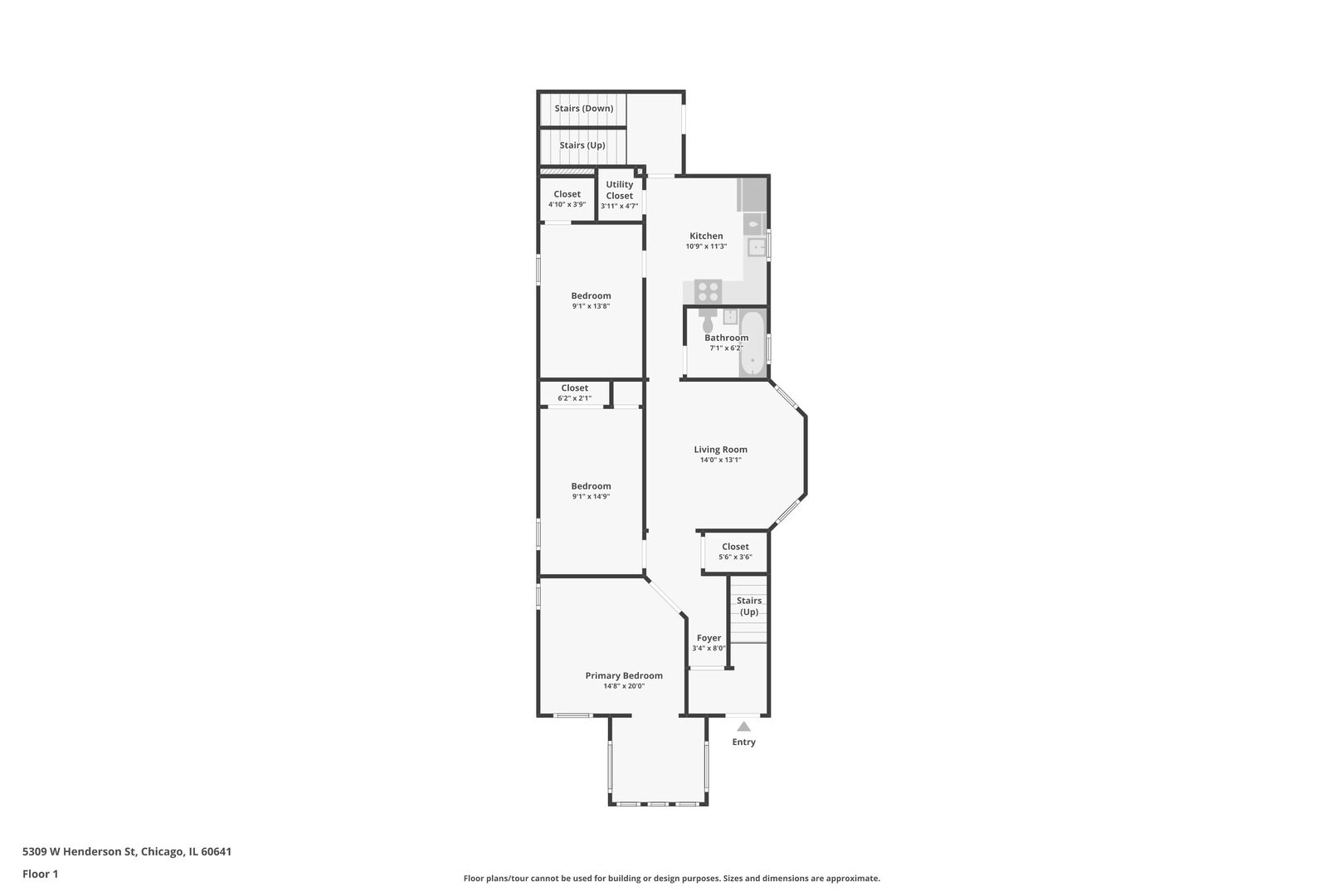
5309 W Henderson Street, Chicago, IL

$680,000

Overview

  • 380739
  • Property ID
  • Updated On:
  • April 28, 2026
  • 6
  • Bedrooms
  • 2
  • Bathrooms

Description

Exceptional investment opportunity in desirable Portage Park! Situated on an oversized 3,750 SF lot, this well-maintained 2-flat features two spacious 3-bedroom, 1-bath units with updated kitchens, updated bathrooms, fresh paint, newer flooring, stainless steel appliances, and central HVAC. Major improvements include updated electrical and plumbing in 2015, a brand-new roof in 2024, and all new hot water heaters in 2025. The garden unit features new vinyl flooring in 2025, a new refrigerator in 2025, and a new stove in 2026. The first-floor unit includes a new refrigerator installed in 2025 and a new microwave in 2024. Great opportunity for investors or owner-occupants seeking strong income potential in a prime Chicago location. Rents are undermarket

Bedrooms
2
5+
Climate Control
Heating
Garden
Yes
Parking
Garage
Other Features
Brick
Detached
Forced Air
Garage Owned
Natural Gas
Public
Public Sewer

yelp logo

$3,486.49
per month
  • Principal and Interest
  • Property Tax
  • HOA fee
  • Private Mortgage Insurance
$ 2,636.49

Similar Listings

For Sale

3254 W Hirsch Avenue, Chicago, IL

$589,000
Beds:
4
Baths:
2
Beautifully updated 2-flat on a 25x125 lot just 1 block from Humboldt Park. First-floor un ...
For Sale

609 W Pleasant Street, Freeport, IL

$69,000
Beds:
5
Baths:
3
Three-unit multifamily offering excellent potential with some TLC. The main-floor unit fea ...
Information for the property at 5309 W Henderson Street, Chicago, IL, 60641 (Property ID: 380739) is deemed reliable but not guaranteed. Property details, pricing, and availability are subject to change without notice. Buyers should independently verify all information before making any real estate decisions.

Compare Listings

Sunita Kakarlapudi