Overview
- 59473
- Property ID
- Updated On:
- March 31, 2026
- Independent Homes
- Category
- 3
- Bedrooms
- 2
- Bathrooms
- 1,290 ft2
- Property Size
- 0 ft2
- Property Lot Size
Description
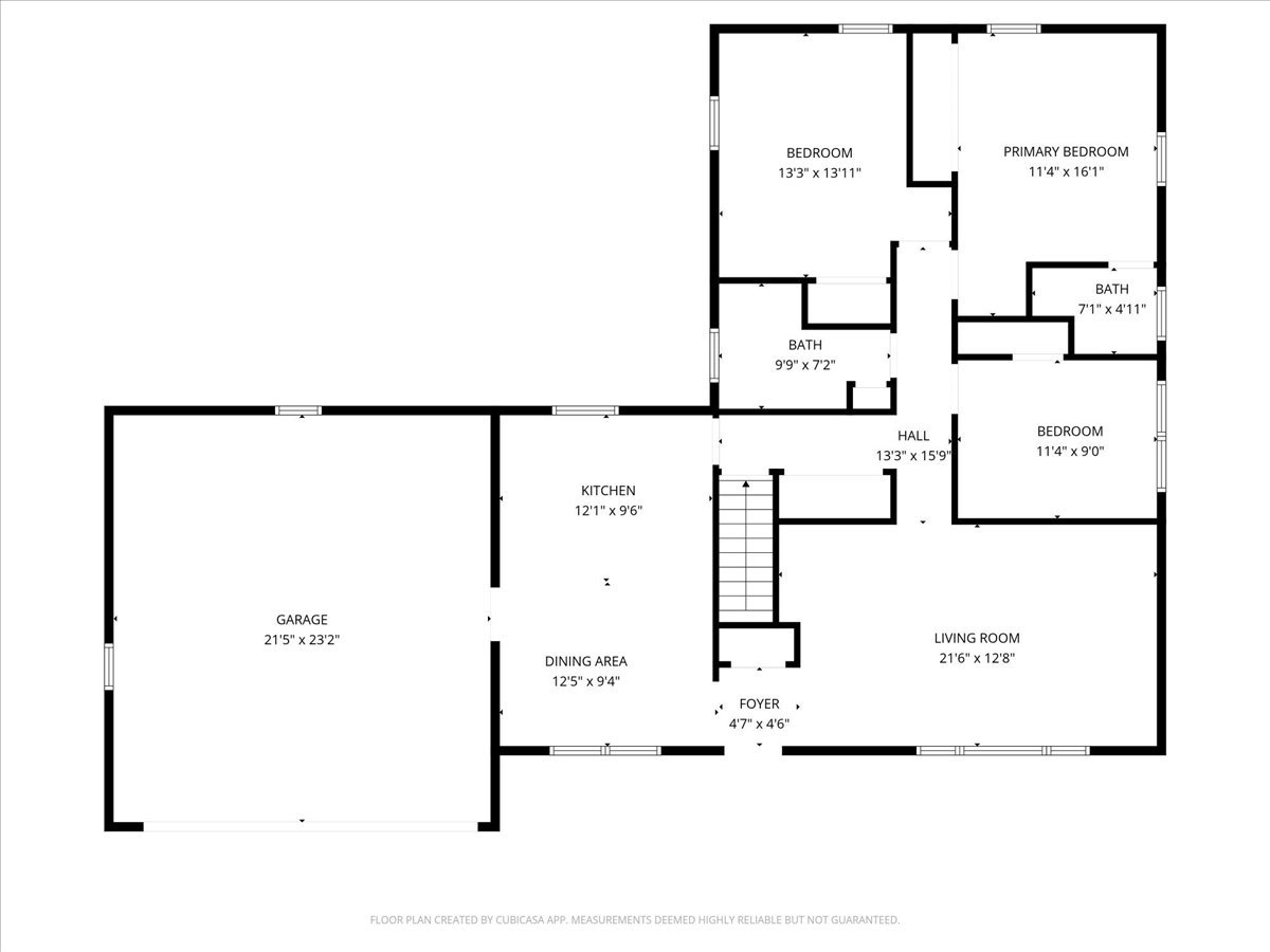
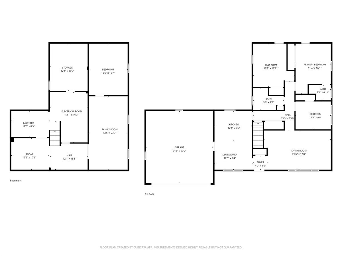
4-bedroom, 2-bath home in Moline offering a functional layout & a convenient location. The main level features a spacious living room, dining area, & a kitchen with stainless steel appliances & ample counter space. The primary bedroom includes its own dedicated full bath, along with 2 additional bedrooms & another full bathroom on the main floor. The finished basement expands the living space with a rec room, a large non-conforming 4th bedroom, an additional flexible room, laundry area, & storage room. The backyard is accessible from the kitchen & includes a level lot with a newer shed & concrete pad. Additional features include a 2-car garage, new sump pump & disposal (2025), & numerous updates over the years (per previous owners): primary bathroom improvements (2023), partial soffit replacement & paint (2023), LVP flooring & trim in one bedroom (2022), backyard electrical & lighting (2021), kitchen backsplash (2021), replacement windows (2019 & 2021), garage door (2020), shed & concrete pad (2020), & furnace, A/C, & humidifier (2018), along with appliances (2017).
- Principal and Interest
- Property Tax
- HOA fee
- Private Mortgage Insurance
















































