Overview
Description
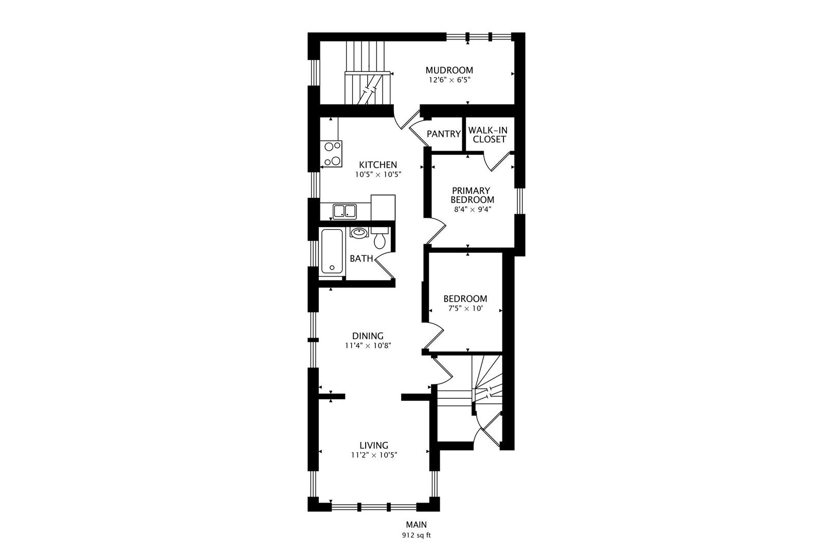
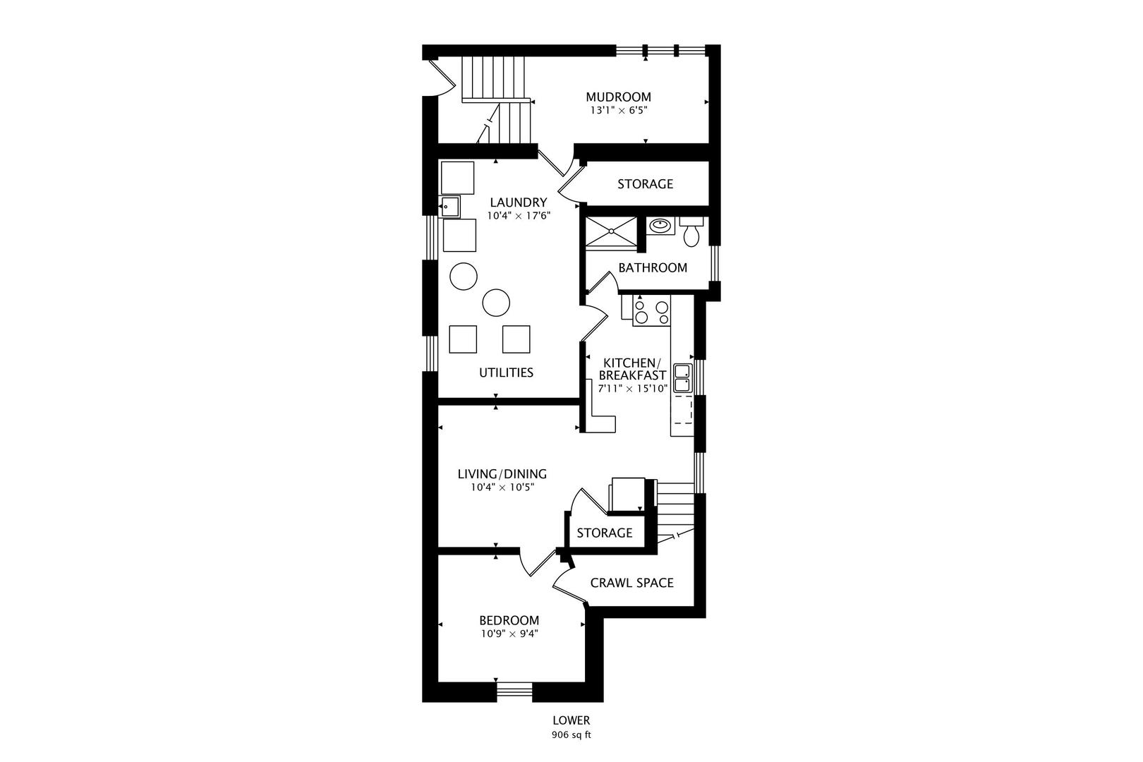
Exceptional multi-unit investment opportunity at 5333 W Foster Ave in Chicago! This unique property features 2 units, with a spacious Coach House, offering incredible income potential and flexibility for investors or owner-occupants alike(3 total units). Situated on a DOUBLE LOT, this well-maintained property offers immediate cash flow potential or the flexibility to live in one unit while renting out the others. The building features multiple units, including a fully finished garden unit with 1 bed/1 bath. Two main units, each offering 2 bed/1 bath layouts, and a spacious coach house with 2 bedrooms and 2 baths. The property has been zoned RS-3. Upgrades have been completed (see additional notes for details), enhancing both value and appeal. Outside, you’ll find a large parking pad with space for up to four vehicles-an added convenience for tenants or owners. Located in a highly desirable commuter-friendly area, the property is within walking distance to the Jefferson Park Transit Center, providing access to the CTA Blue Line, Metra, and Amtrak. The Kennedy Expressway is just 1/4 mile west, and the Edens Expressway is 1/4 mile east, making travel throughout the city and suburbs effortless. Downtown Chicago is approximately 11 miles away, and O’Hare International Airport is just 6 miles from the property. Enjoy close proximity to shopping, dining, and entertainment along Milwaukee Avenue and within the bustling triangle bordered by Foster, Cicero, and Elston. The property is also located within the boundaries of Beaubien Elementary School and Taft High School. Don’t miss this rare opportunity to own a versatile, income-generating property in a prime Chicago location! Great Cap Rate! The current rent is lower than the market rent in the area. Market rent for the units. 1 – $1881 2 – $1881 Coach – $2701
- Principal and Interest
- Property Tax
- HOA fee
- Private Mortgage Insurance













































































