Overview
- 572683
- Property ID
- Updated On:
- April 29, 2026
- Independent Homes
- Category
- 3
- Bedrooms
- 2
- Bathrooms
- 1,698 ft2
- Property Size
Description
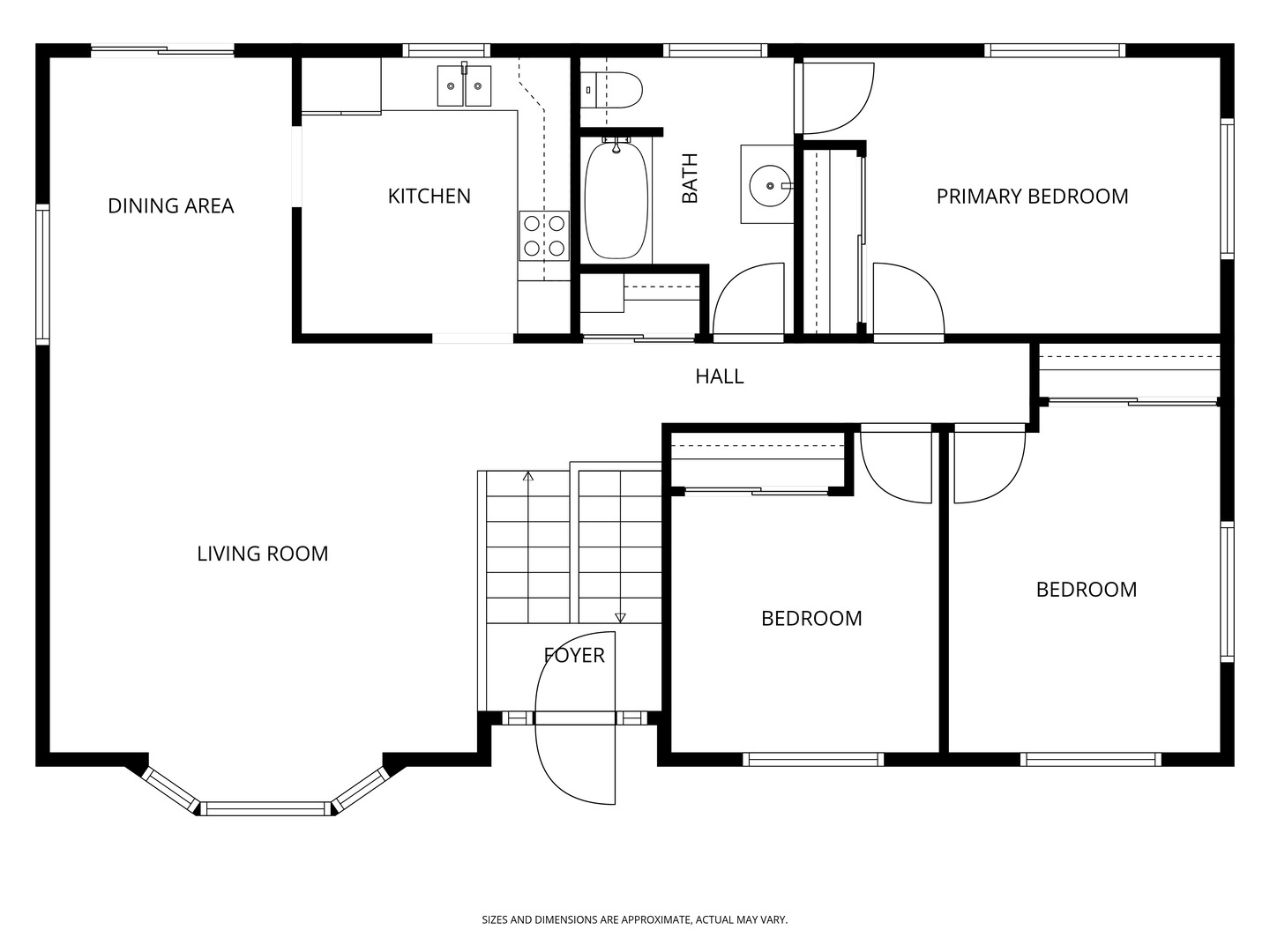
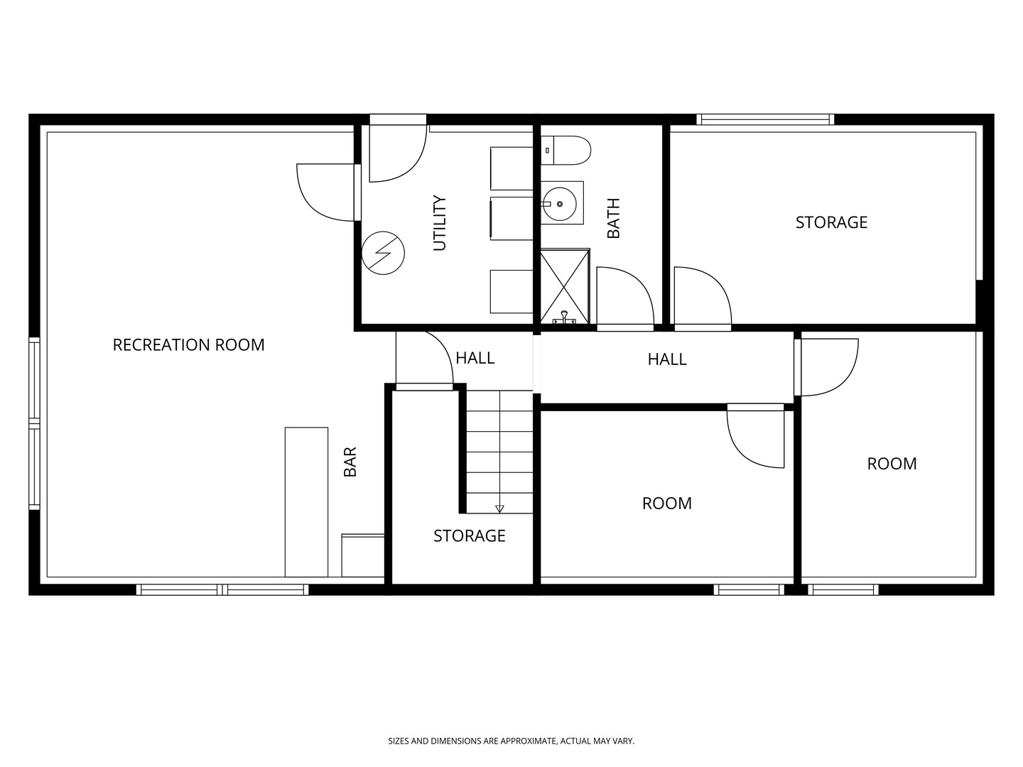
Great Home ~ Perfect Location ~ Oakview Subdivision ~ Bright & Open Raised Ranch Home with 3 Bedrooms & 2 Full Baths ~ MAIN LEVEL FEATURES: Living Room with Bay Window ~ Dining Room with Hardwood Flooring & Slider to Deck ~ Kitchen with Light Cabinets ~ 3 Bedrooms (2 with hardwood flooring) ~ Full Bathroom (access from both the primary & hallway) ~ Hall Closet ~~ LOWER LEVEL FEATURES: Large Family Room ~ Full Updated Bathroom ~ 3 Additional Rooms (possible Bedroom, exercise / craft & storage) ~ Laundry / Utility Room with Access to Backyard ~~ EXTERIOR FEATURES: Detached 2 Car Garage ~ Long / Extended Driveway (including easement) ~ Large Deck ~ Fire pit ~ Shed ~ Mature Trees & Plantings ~ Open to Greenspace ~~ ADDITIONAL INFO: Lisle District 202 Schools, Close to Major Transportation Corridors, Minutes to Downtown Lisle & Naperville with Recreation, Restaurants, Shopping & More ~~ Roof 2022, AC / Furnace / Water Heater 2019, Driveway (including easement) 2023, Deck 2025, Basement Bathroom 2026 ~~ LIVE & LOVE LISLE!
- Principal and Interest
- Property Tax
- HOA fee
- Private Mortgage Insurance
















































