5415 N Ashland Avenue, Chicago, IL

$2,300,000

Overview

  • 120690
  • Property ID
  • Updated On:
  • April 20, 2026
  • 5
  • Bedrooms
  • 5
  • Bathrooms
  • 3,800 ft2
  • Property Size

Description

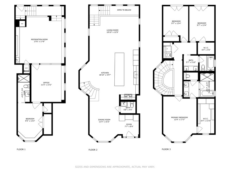
A rare private oasis in the heart of Andersonville, this extraordinary residence offers a level of resort-style living seldom found in Chicago. The expansive, beautifully landscaped backyard creates a secluded luxury retreat in the city, complete with a heated pool, spa, generous outdoor entertaining space, and a separate guest house for hosting friends or housing an au pair-an exceptional setting designed for stylish city living, along with a two-car garage. Originally constructed in 1896, the home has been completely transformed into a remarkable single-family residence through a comprehensive studs-out reconstruction. The home was entirely gutted and rebuilt with extraordinary attention to detail, including all new mechanical, electrical, and plumbing systems, creating the comfort and performance of a newly constructed luxury home while preserving its historic architectural character. The exterior has been beautifully restored and reimagined with a newly constructed greystone facade, creating timeless Chicago architectural elegance and striking curb appeal. Thoughtfully designed with an uncompromising commitment to quality, the interior showcases exceptional craftsmanship, refined materials, and best-in-class systems throughout. Double-pane windows provide excellent insulation while contributing to a remarkably peaceful interior environment. The chef’s kitchen stands as a true culinary showpiece, appointed with a Miele steam oven, built-in Miele espresso system with warming drawer, Wolf convection oven and integrated gas cooktop, and fully integrated Gaggenau refrigerator, freezer, and dishwasher concealed behind custom European cabinetry. A dramatic 15-foot Silverwave island anchors the space and creates an extraordinary centerpiece for gathering and entertaining. A custom appliance garage keeps everyday appliances elegantly concealed while preserving the kitchen’s clean architectural lines. Throughout the home, hand-cut solid oak herringbone floors installed by European artisans reflect exceptional craftsmanship and are complemented by RH solid brass lighting fixtures throughout the home. A custom hand-bent hardwood staircase illuminated by a striking brass chandelier creates a dramatic architectural focal point, while elegant Silverwave stone details add refinement throughout the residence. The primary suite offers a serene spa-inspired retreat and includes, heated floors, a steam room with essential-oil infusion, a chromotherapy soaking tub, and a Japanese-style smart toilet with integrated bidet. A bespoke European-designed large closet with brass finishes completes the suite. Two additional guest bedrooms with Juliette balconies overlook the garden and pool. The guest bath showcases leathered Italian stone, custom built-ins, and an upstairs laundry for everyday convenience. The lower level offers an exceptional setting for entertaining, with a spacious home theater and a fully equipped bartender’s bar complete with built-in beverage drawers, wine refrigerator, commercial ice maker, dishwasher, and a dedicated service laundry designed for bar and entertaining needs. A dramatic steel-and-glass wall opens to a secure workspace wired with dual Ethernet to a Ubiquiti network. A private guest suite with a full ensuite bath completes the level. At the rear of the property is a newly constructed one-bedroom, one-bath guest house with a full kitchen and washer/dryer. The guest house can also operate as a turnkey income-producing residence. The two-car garage includes a 220-volt EV charger. Located just steps from the acclaimed restaurants, boutiques, and cafes of Clark Street, this remarkable property offers an extraordinary opportunity to own one of Andersonville’s most distinctive luxury residences.

Bathrooms
3+
Bedrooms
5+
Climate Control
Air Conditioning
Heating
Floor Area
3,000+ sqft
Parking
Garage
Swimming Pool
Yes
Other Features
Aluminum Frames
Balcony
Blinds
Brick
Built-in Features
Central Air
CO Detectors
Concrete
Curbs
Detached
Dishwasher
Disposal
Double Oven
Double Pane Windows
Drapes
Dryer
Forced Air
Front Controls on Range/Cooktop
Garage Door Opener
Garage Owned
Gas Cooktop
Gas Dryer Hookup
Gas Oven
Gas Starter
Gated
Greystone
Hardwood
High End Refrigerator
Hot Tub
Humidifier
In Ground
In Unit
In-Unit Laundry
Lake Michigan
Laundry Closet
Microwave
Multiple Locations
Natural Gas
Oven
Patio
Pool
Public
Public Sewer
Range Hood
Screens
Security System
Sep Heating Systems - 2+
Shared Laundry
Sidewalks
Stone
Storage
Street Lights
Street Paved
Sump Pump
Walk-In Closet(s)
Washer
Wet Bar
Wine Refrigerator
Zoned

yelp logo

$11,792.56
per month
  • Principal and Interest
  • Property Tax
  • HOA fee
  • Private Mortgage Insurance
$ 8,917.56

Similar Listings

For Sale

3305 York Road, Oak Brook, IL

$6,700,000
Beds:
6
Baths:
8
Size:
8,947 ft2
Featured as one of the Top Spotlight Homes on the Hinsdale Center of the Arts 2010 Oak Bro ...
For Sale

435 N Michigan Avenue #503, Chicago, IL

$2,675,000
Beds:
3
Baths:
4
Size:
3,249 ft2
Tribune Tower Residence offers an amazing opportunity to own a home in one of Chicago's mo ...
Information for the property at 5415 N Ashland Avenue, Chicago, IL, 60640 (Property ID: 120690) is deemed reliable but not guaranteed. Property details, pricing, and availability are subject to change without notice. Buyers should independently verify all information before making any real estate decisions.

Compare Listings

Sunita Kakarlapudi