Overview
- 229109
- Property ID
- Updated On:
- April 14, 2026
- Independent Homes
- Category
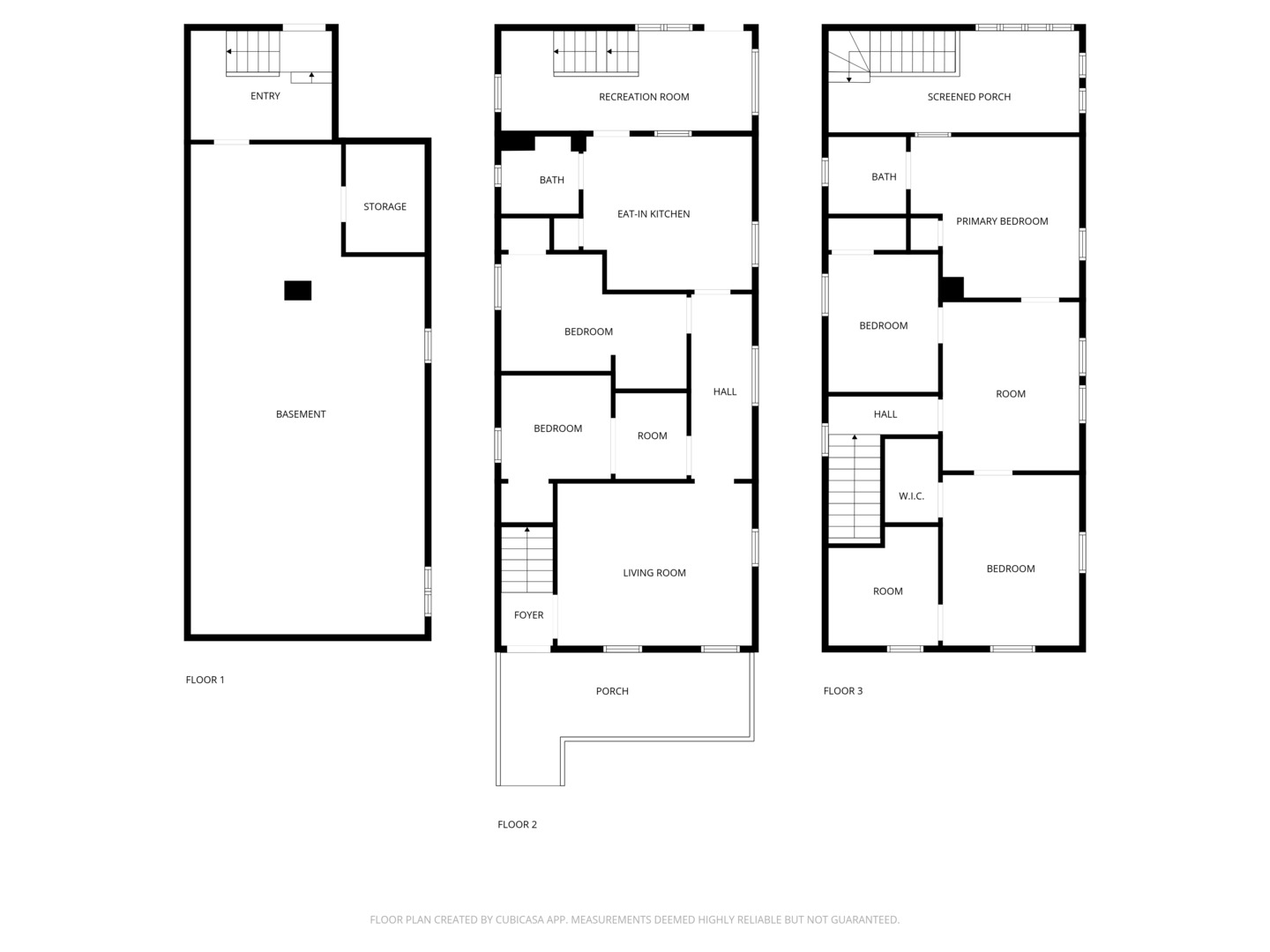
- 5
- Bedrooms
- 2
- Bathrooms
- 1,722 ft2
- Property Size
- 0 ft2
- Property Lot Size
Description
Experience a vibrant lifestyle surrounded by culture, music, cuisine, and energy in this truly unique location. Where historic charm meets contemporary elegance, this thoughtfully renovated two-story treasure offers ample space with 5 bedrooms, 2 bathrooms, and over 1,700 square feet of sun-drenched living. Enjoy peace of mind with recent upgrades throughout: brand-new exterior siding, gutters, and windows; a sleek modern kitchen featuring 2021 countertops, cabinets, appliances, and sink; fully remodeled bathrooms from top to bottom; and fresh luxury vinyl tile and carpet flooring. Just blocks from North Beach, Stewart Park, the Waukegan History Museum, Jack Benny Center, Genesee Theatre, Bowen Park, and an abundance of downtown restaurants, shops, bars, and entertainment venues-this location is simply unmatched.
- Principal and Interest
- Property Tax
- HOA fee
- Private Mortgage Insurance



































