Overview
- 237576
- Property ID
- Updated On:
- April 14, 2026
- Independent Homes
- Category
- 3
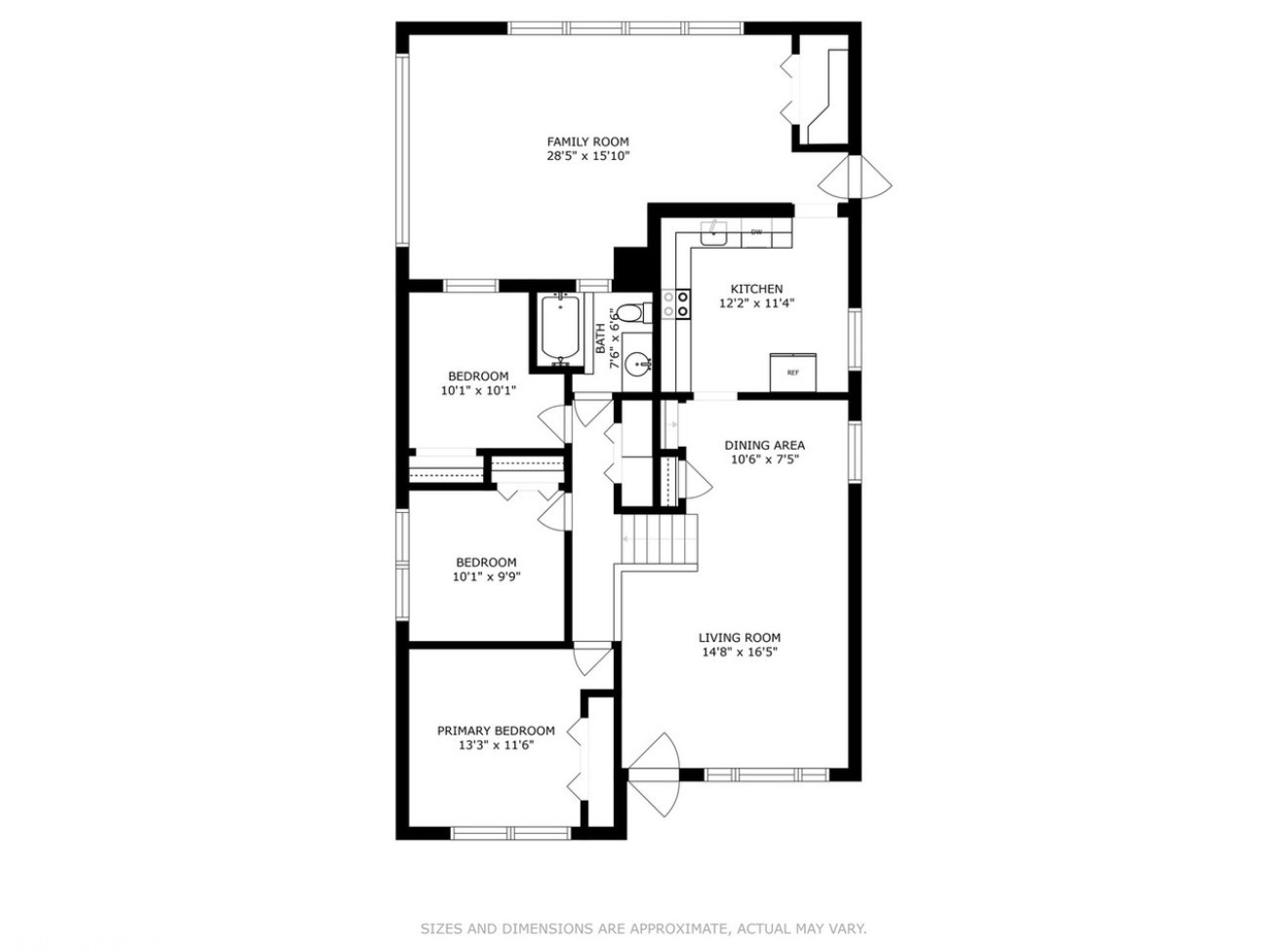
- Bedrooms
- 2
- Bathrooms
- 1,518 ft2
- Property Size
Description
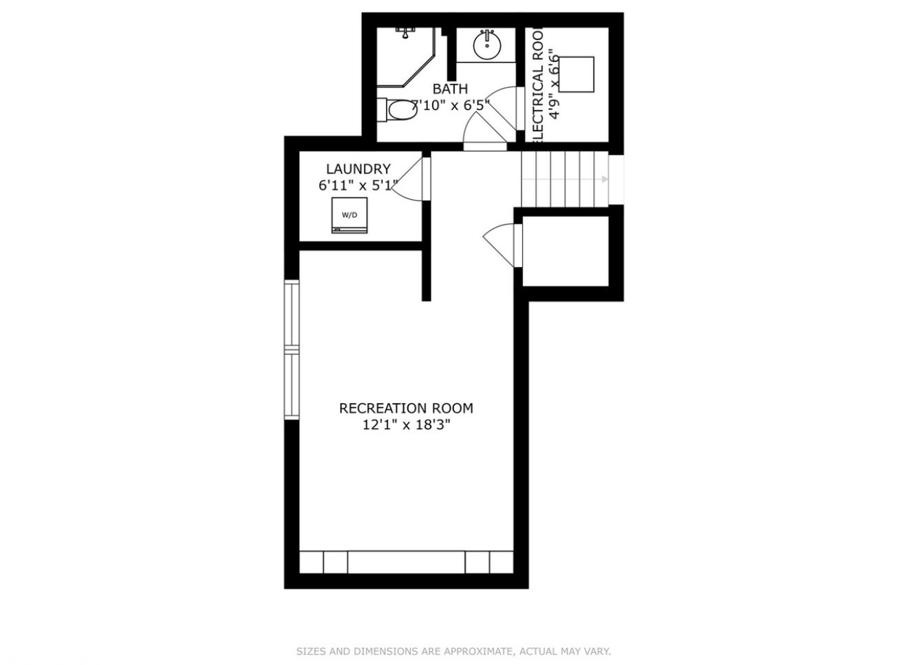
Charming SplitLevel Home – MoveIn Ready Bright and thoughtfully updated splitlevel home offering 3 bedrooms, 2 baths, and ample living space. The heart of the home is a kitchen with GE Profile appliances (2023). A nearly 500 sq ft familyroom addition expands the living area and creates flexible space for everyday life and entertaining. The lower level features a dedicated movie room-perfect for family nights or a media setup. Recent major investments include new HVAC with smart thermostat (2024), new roof, gutters, and gutter guards (2024), new remote skylight (2024), exterior solar lights (2023), windows replaced (2015), and a new injector pump (2026). Outdoors you’ll find a new patio with gas fire pit, an inground basketball hoop, and an extended driveway with room for up to 10 cars-ideal for guests and gatherings. Located in a convenient Glen Ellyn neighborhood.
- Principal and Interest
- Property Tax
- HOA fee
- Private Mortgage Insurance































