Overview
- 162729
- Property ID
- Updated On:
- April 10, 2026
- Independent Homes
- Category
- 4
- Bedrooms
- 5
- Bathrooms
- 4,032 ft2
- Property Size
- 0 ft2
- Property Lot Size
Description
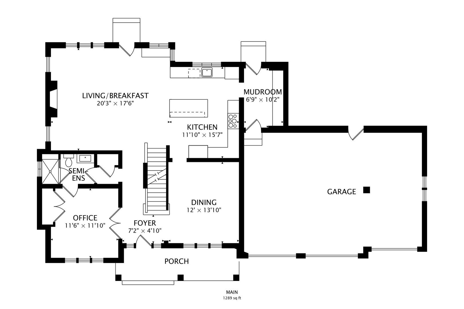
This stunning 2021 custom newer construction home lives like new and offers an exceptional open floor plan perfect for both everyday living and entertaining. The main level features a spacious great room, formal dining room, and a versatile den (or 5th bedroom) with an adjoining full bath and walk-in shower. Enjoy 9′ ceilings, beautiful hardwood flooring, and custom trim work throughout the main level. The chef’s kitchen is a standout with crisp white cabinetry, premium Thermador Wi-Fi-enabled appliances, elegant quartz countertops, a large center island with breakfast bar, and stylish pendant lighting. Upstairs, you’ll find four generously sized bedrooms, including a luxurious primary suite with a spa-like master bath featuring a soaker tub, separate shower, and a custom walk-in closet. A convenient second-floor laundry room adds to the everyday ease. The fully finished basement provides an additional 1,100 sq. ft. of living space, complete with a large recreation room featuring a walk-up bar, a full bath, and a flexible home office (or 6th bedroom). Additional highlights include dual-zone heating and cooling, abundant storage in the third-floor attic that is ready to be finished, and beautiful decorator touches throughout. Located in the highly desirable Golfview Hills subdivision, this home is just blocks from Hinsdale Central High School and Ruth Lake Country Club, offering an unbeatable location with easy access to top-rated schools, recreation, and community amenities. Don’t miss this opportunity to make this beautiful, move-in-ready home yours today!
- Principal and Interest
- Property Tax
- HOA fee
- Private Mortgage Insurance















































