Overview
- 53063
- Property ID
- Updated On:
- April 15, 2026
- Independent Homes
- Category
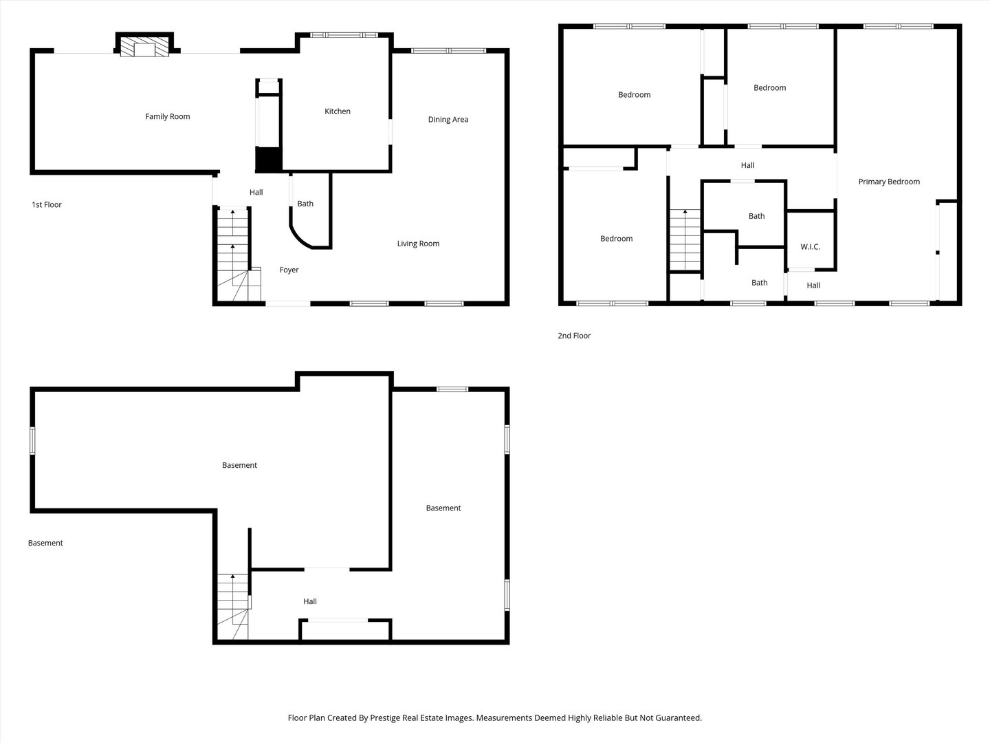
- 4
- Bedrooms
- 3
- Bathrooms
- 2,299 ft2
- Property Size
- 0 ft2
- Property Lot Size
Description
This is the one you’ve been waiting for – a 2,299 sq ft home tucked away on a private cul-de-sac in Naperville’s beloved Steeple Run community, priced to sell and ready for your personal touch. The exterior is completely updated – step outside and enjoy a very spacious 0.28-acre yard, one of the larger lots on the street, with an attached garage and an enclosed front porch perfect for morning coffee. Inside, the layout is wide open with 2.5 bathrooms and room to create the home you’ve always wanted. Bring your contractor, bring your vision – the canvas is here. Live the Steeple Run lifestyle with a community pool, clubhouse, and tennis courts right in your neighborhood Homes in this location, with a yard this size, at this price, do not come around often. Move fast.
- Principal and Interest
- Property Tax
- HOA fee
- Private Mortgage Insurance





























