601 Meade Boulevard, North Aurora, IL

$585,000

Overview

  • 62000
  • Property ID
  • Updated On:
  • March 31, 2026
  • 5
  • Bedrooms
  • 3
  • Bathrooms
  • 3,874 ft2
  • Property Size
  • 1 ft2
  • Property Lot Size

Description

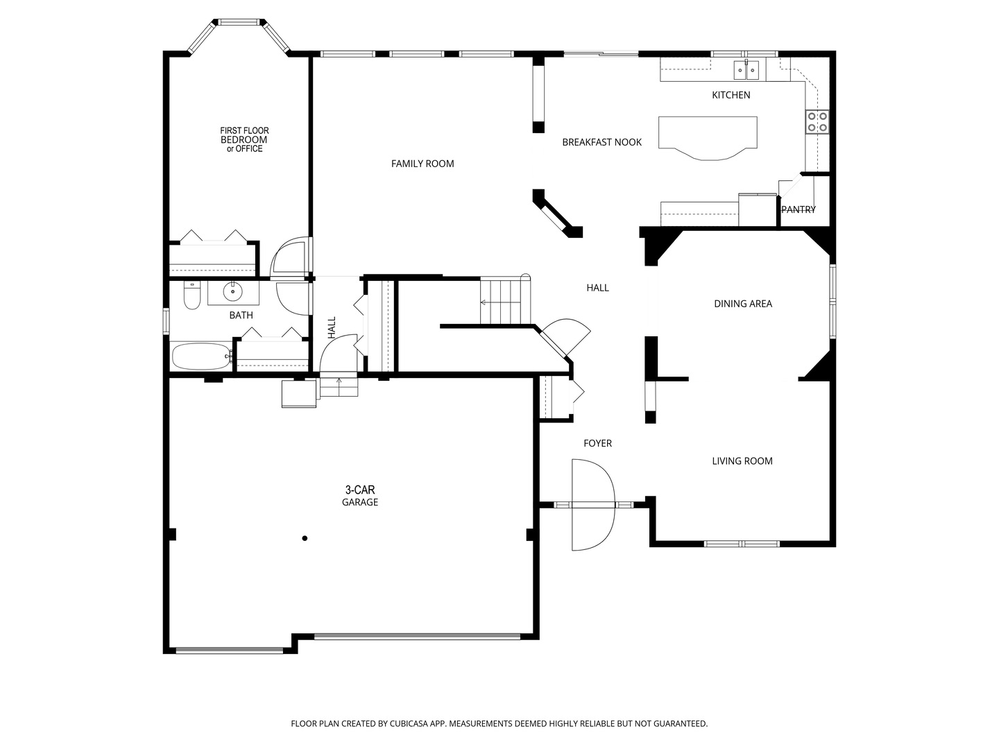
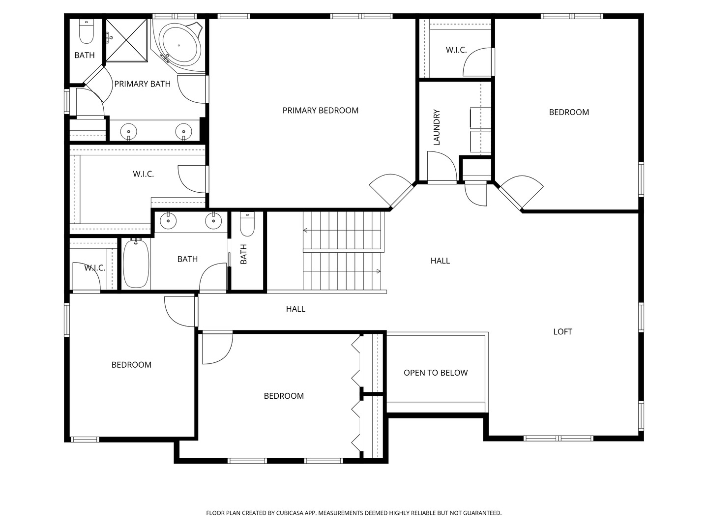
Big, Beautiful and Waiting For You. Wonderful Tanner Trails Home On 1/2 Acre Lot! This Randolph Model Is Spacious & Spectacular! Almost 4,000 S.F. Above Grade. 5 Bedrooms, 3 Full Baths. Dramatic 2-Story Foyer Leads To Terrific Open Floor Plan Featuring 9Ft Ceilings and Beautiful “Wood Look” Floors Through-Out 1st Floor. Inviting Family Room With Over-Sized Windows For Tons Of Natural Light, Plantation Shutters and Art Niche Flows Into Large Eat-in Kitchen With All Stainless Steel Appliances, Raised Panel Birch Cabinetry, Island Counter, Walk-In Pantry and Sliding Glass Door Leading To Concrete Patio Overlooking Huge Back Yard with Storage Shed. Large Formal Dining Room. Formal Living Room With Recessed Lighting. 1st Floor 5th Bedroom/Office With Bay Window Has Private Access To 1st Floor Full Bath for Potential In-Law or Teen Suite. Mud Room Rounds Out 1st Floor and Leads To Over-Sized 3+ Car Garage. Spacious 2nd Floor Features Versatile Bright and Sunny Loft Area Which Could Be Used As A 2nd Office, Gaming Area or Just A Spot To Hang Out. Vaulted Master Suite Features Huge Walk-In Closet and Luxury Bath With Glass Door Step In Shower, Corner Jetted Tub and Double Sinks. Generously Sized Bedrooms 2-4 All With Ample Closet Space. 2nd Floor Laundry and 3rd Full Bath. Full Deep Pour Unfinished Basement with Roughed In Plumbing Is Ready For Finishing. Zoned HVAC. 75 Gallon Water Heater. Great Location Across From Tanner Trails Park and Play Ground. Close To Shopping, Restaurants and Rt 88.

Bathrooms
3
Bedrooms
5+
Climate Control
Air Conditioning
Heating
Floor Area
3,000+ sqft
Garden
Yes
Parking
Garage
Other Features
1st Floor Bedroom
1st Floor Full Bath
200+ Amp Service
Asphalt
Attached
Backup Sump Pump;
Brick
Built-in Features
Carpet
Cathedral Ceiling(s)
Ceiling Fan(s)
Central Air
Circuit Breakers
CO Detectors
Coffered Ceiling(s)
Concrete Perimeter
Corner Lot
Curbs
Dishwasher
Disposal
Dryer
Electric Cooktop
Electric Oven
Fan-Attic Exhaust
Forced Air
Garage Door Opener
Garage Owned
Gas Dryer Hookup
High Ceilings
Humidifier
In Unit
In-Law Floorplan
In-Unit Laundry
Indv Controls
Intercom
Lake
Laminate
Microwave
Multiple Locations
Natural Gas
Open Floorplan
Park
Patio
Public
Public Sewer
Range
Refrigerator
Sep Heating Systems - 2+
Separate Dining Room
Shared Laundry
Shed(s)
Sidewalks
Stainless Steel Appliance(s)
Storage
Storm Sewer
Street Lights
Street Paved
Sump Pump
Traditional
Upper Level
Vaulted Ceiling(s)
Walk-In Closet(s)
Washer
Water Heater-Gas
Water Softener
Water Softener Owned
Water-Softener Owned
Zoned

Transport
Supermarkets
Schools
Restaurants
Pharmacies
Hospitals

yelp logo

$3,059.41
per month
  • Principal and Interest
  • Property Tax
  • HOA fee
  • Private Mortgage Insurance
$ 2,268.16

Similar Listings

For Sale

511 MAIN Avenue, Clinton, IA

$72,000
Beds:
2
Baths:
1
Size:
945 ft2
This is such a cute home and is move in ready. New AC and 220 for AC in July 2025. New roo ...
For Sale

1312 Nicki Drive, Bloomington, IL

$248,000
Beds:
3
Baths:
2
Size:
1,472 ft2
Welcome to this beautifully updated single-family ranch home offering comfort, style, and ...
Information for the property at 601 Meade Boulevard, North Aurora, IL, 60542 (Property ID: 62000) is deemed reliable but not guaranteed. Property details, pricing, and availability are subject to change without notice. Buyers should independently verify all information before making any real estate decisions.
🚧 Our website is under development. We are working hard to bring you better eperience ,please check back soon!

Compare Listings

Sunita Kakarlapudi