Overview
- 299628
- Property ID
- Updated On:
- April 19, 2026
- Independent Homes
- Category
- 4
- Bedrooms
- 3
- Bathrooms
- 2,252 ft2
- Property Size
Description
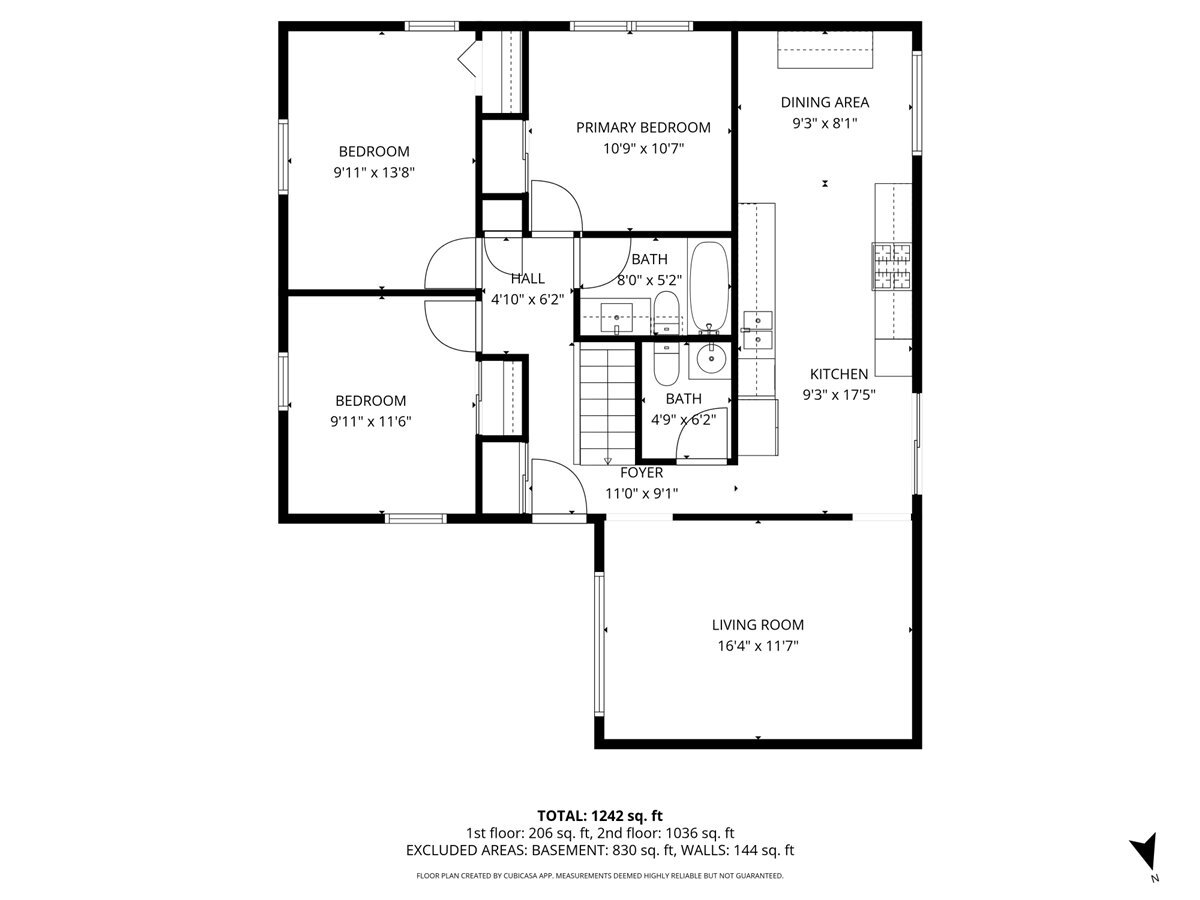
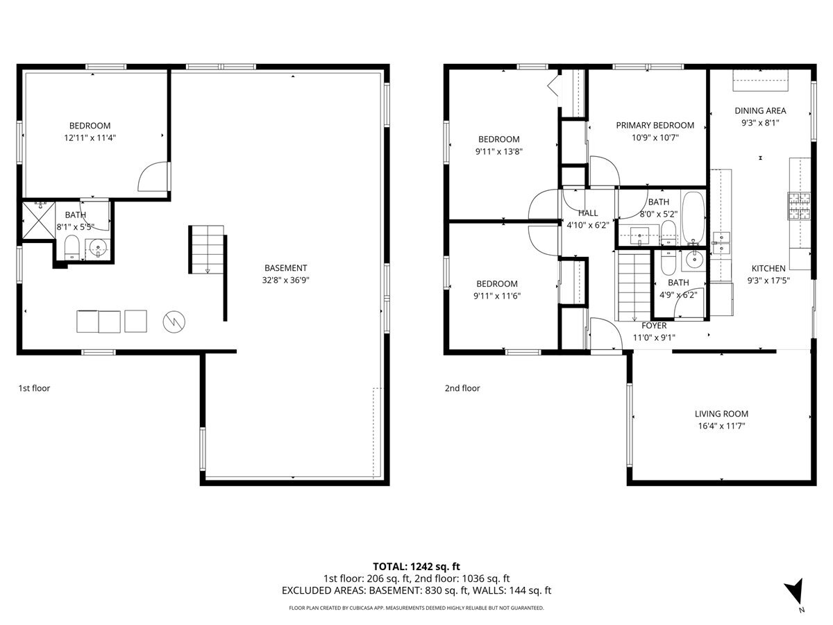
Beautifully maintained 4-bedroom home featuring three bedrooms on the main level and a private fourth bedroom with a full bath on the lower level-ideal for an in-law suite or teen retreat. Enjoy a spacious, fully fenced yard and sliding glass doors that open to a large deck, perfect for outdoor entertaining. The well-appointed kitchen offers abundant counter space and newer appliances. Additional highlights include ceiling fans in every room, a new water heater, and laminate flooring throughout the main level. A quick closing is possible.
Bathrooms
3
Bedrooms
4
Climate Control
Air Conditioning
Heating
Floor Area
2,000-3,000 sqft
Garden
Yes
Parking
Garage
Other Features
100 Amp Service
Aluminum Siding
Asphalt
Attached
Ceiling Fan(s)
Central Air
Circuit Breakers
CO Detectors
Concrete Perimeter
Curbs
Deck
Dishwasher
Fenced
Forced Air
Garage Owned
In-Law Floorplan
Microwave
Natural Gas
Public
Public Sewer
Range
Refrigerator
Sidewalks
Step Ranch
Street Lights
Street Paved
TV-Cable
$1,666.34
per month
- Principal and Interest
- Property Tax
- HOA fee
- Private Mortgage Insurance
$ 1,260.09
Similar Listings
Featured
For Sale
1147 Steeple View Drive, Long Grove, IL
$1,570,000
Beds:
4Baths:
4Size:
5,480 ft2
Nestled within the prestigious Grove Country Club community and just minutes from charming ...
Featured
For Sale
15 Terra Vita Court, South Barrington, IL
$2,800,000
Beds:
7Baths:
9Size:
13,172 ft2
Italian/mediterranean Masterpiece In Terra Vita, South Barrington. Experience Over 13,000 ...







































