Overview
- 108854
- Property ID
- Updated On:
- April 28, 2026
- Independent Homes
- Category
- 5
- Bedrooms
- 3
- Bathrooms
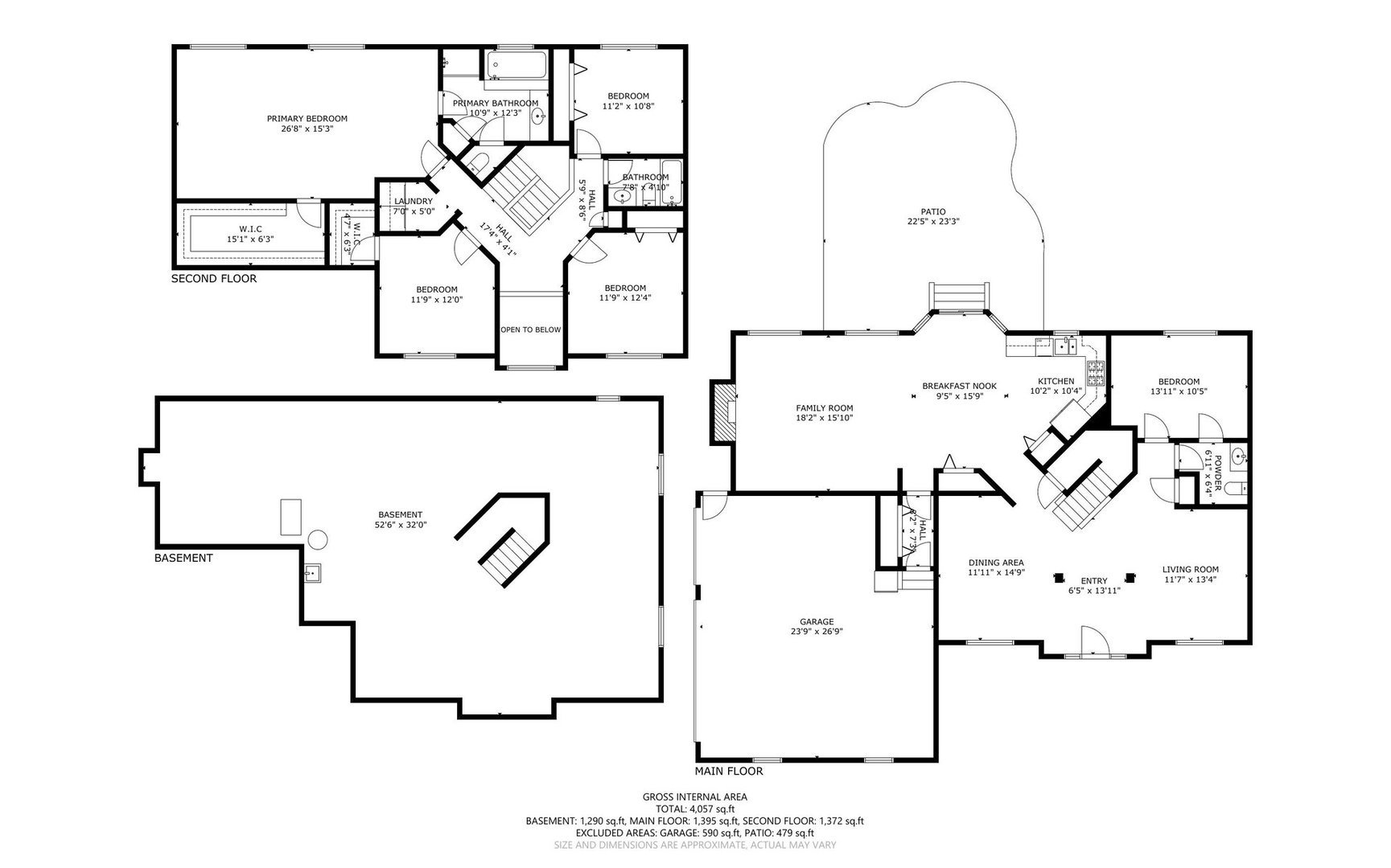
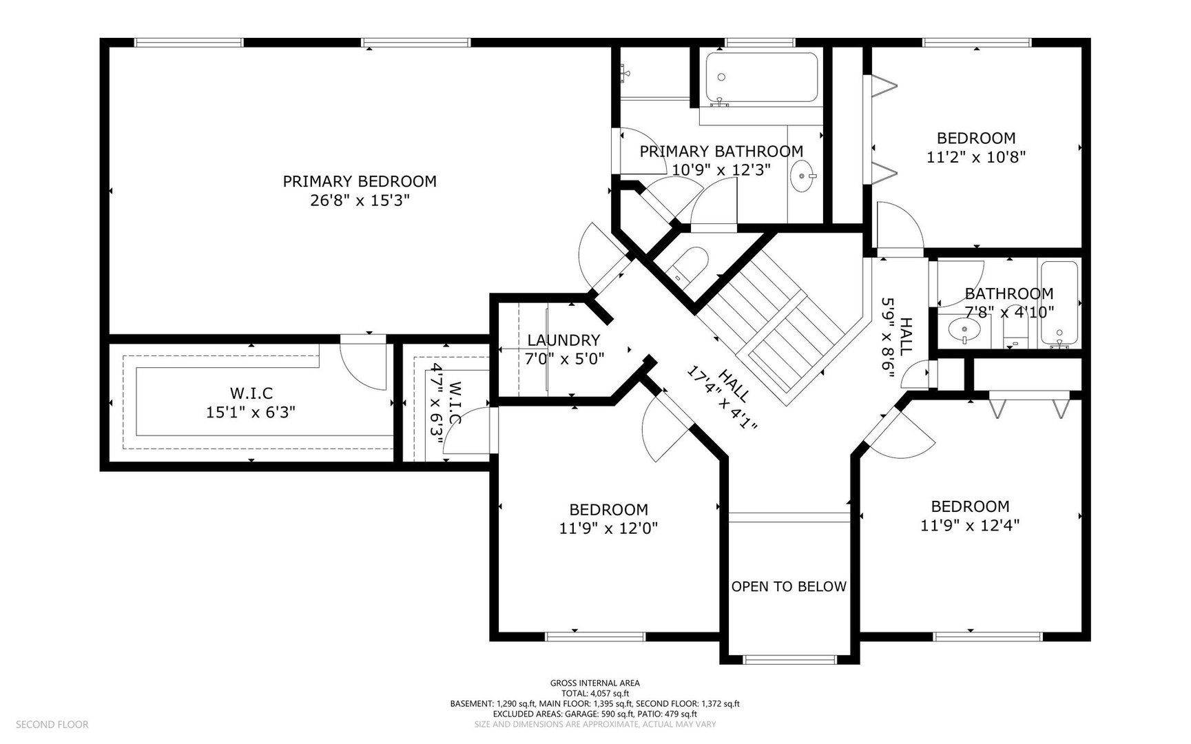
- 2,799 ft2
- Property Size
- 0 ft2
- Property Lot Size
Description
Welcome to 6119 Sands Road in unincorporated Crystal Lake, where space, flexibility, and top-tier schools come together. Set on a nearly half-acre lot with no HOA, this East facing and well-maintained home offers the kind of freedom and room today’s buyers are searching for. Located within the highly sought-after Prairie Ridge High School district, this is a standout opportunity for anyone wishing for both lifestyle and long-term value. Inside, the home features 5 bedrooms, including a main-level bedroom tucked next to a half bath, ideal for guests, in-laws, or a private home office. Upstairs, you’ll find four additional bedrooms, all with updated luxury vinyl flooring. The spacious primary suite is a true retreat, featuring coffered ceilings, walk-in closet and a full bath with a separate shower and soaking tub, perfect for both relaxing at the end of the day and getting out the door with ease. The layout flows effortlessly, with open, connected living spaces that make everyday living and entertaining easy. The kitchen opens to the main living area, creating a central hub for gatherings, while large windows bring in natural light and views of the fully fenced-in expansive yard. The full unfinished basement offers incredible potential, complete with a rough-in for a future full bath. Ready for your vision whether that’s a rec space, home gym, or additional living area. Whether you’re thinking home gym, rec space, or future finished living area, possibilities are endless. The 3-car garage provides ample storage for vehicles, tools, and toys. Recent updates include all new flooring upstairs, a new well pump, new washer and dryer, and new dishwasher, giving buyers added peace of mind. If you’ve been searching for space, flexibility, and a strong school district, without the restrictions of an HOA, this is the one!
- Principal and Interest
- Property Tax
- HOA fee
- Private Mortgage Insurance




















































