Overview
- 394510
- Property ID
- Updated On:
- April 24, 2026
- Independent Homes
- Category
- 2
- Bedrooms
- 2
- Bathrooms
- 1,088 ft2
- Property Size
Description
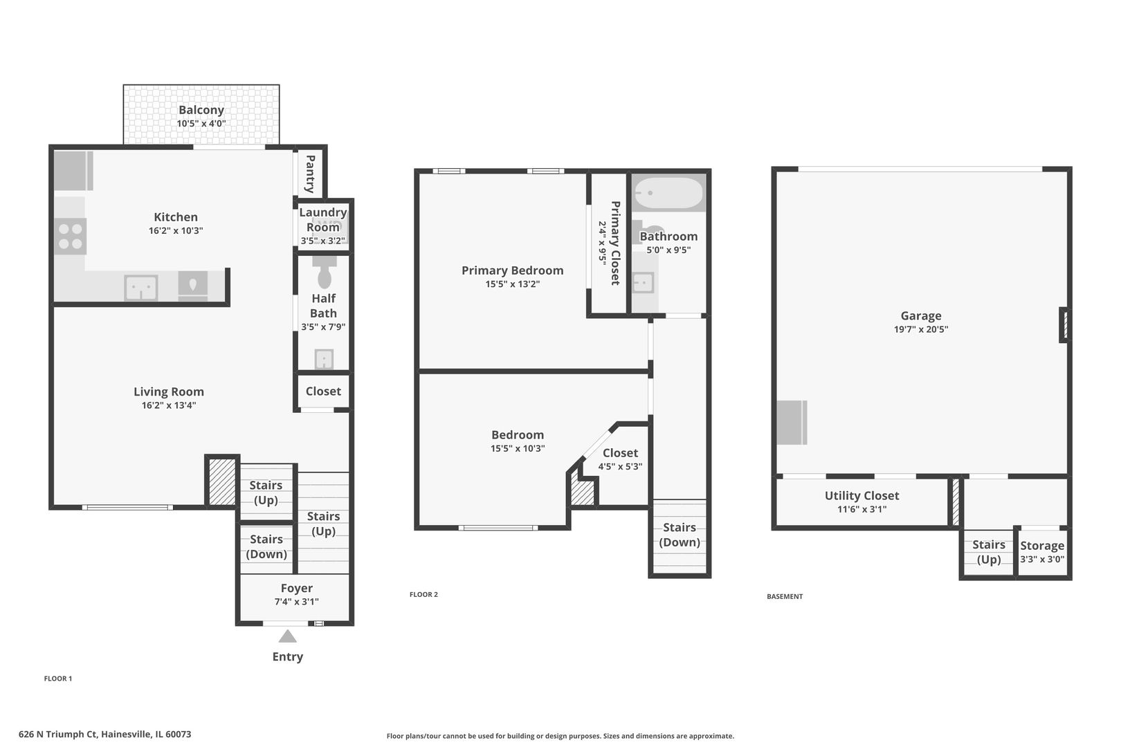
MORE SPACE THAN EXPECTED, this 2-bed/1.5-bath two-story townhouse in the Cranberry Lake neighborhood offers a functional layout, solid updates, and a location that supports daily convenience. The bright living room flows into an eat-in kitchen with a newer stove and dishwasher, brand new disposal, pantry closet, and a dedicated first-floor laundry closet with a 2024 washer and dryer, while sliding glass doors lead to a private balcony. Upstairs, both bedrooms are well-sized and share a full bath, keeping the layout efficient and practical. Key updates include furnace and A/C replaced in 2020 and a 2-car attached garage with a 2021 door and opener, supporting long-term ownership predictability. Set within a well-kept, engaged community with consistent upkeep and seasonal traditions, the location offers access to Cranberry Lake and its surrounding trail system, nearby parks, Highland Lake and Round Lake, local schools, and convenient proximity to commuter train lines.
- Principal and Interest
- Property Tax
- HOA fee
- Private Mortgage Insurance



































