Overview
- 351847
- Property ID
- Updated On:
- April 21, 2026
- Independent Homes
- Category
- 2
- Bedrooms
- 2
- Bathrooms
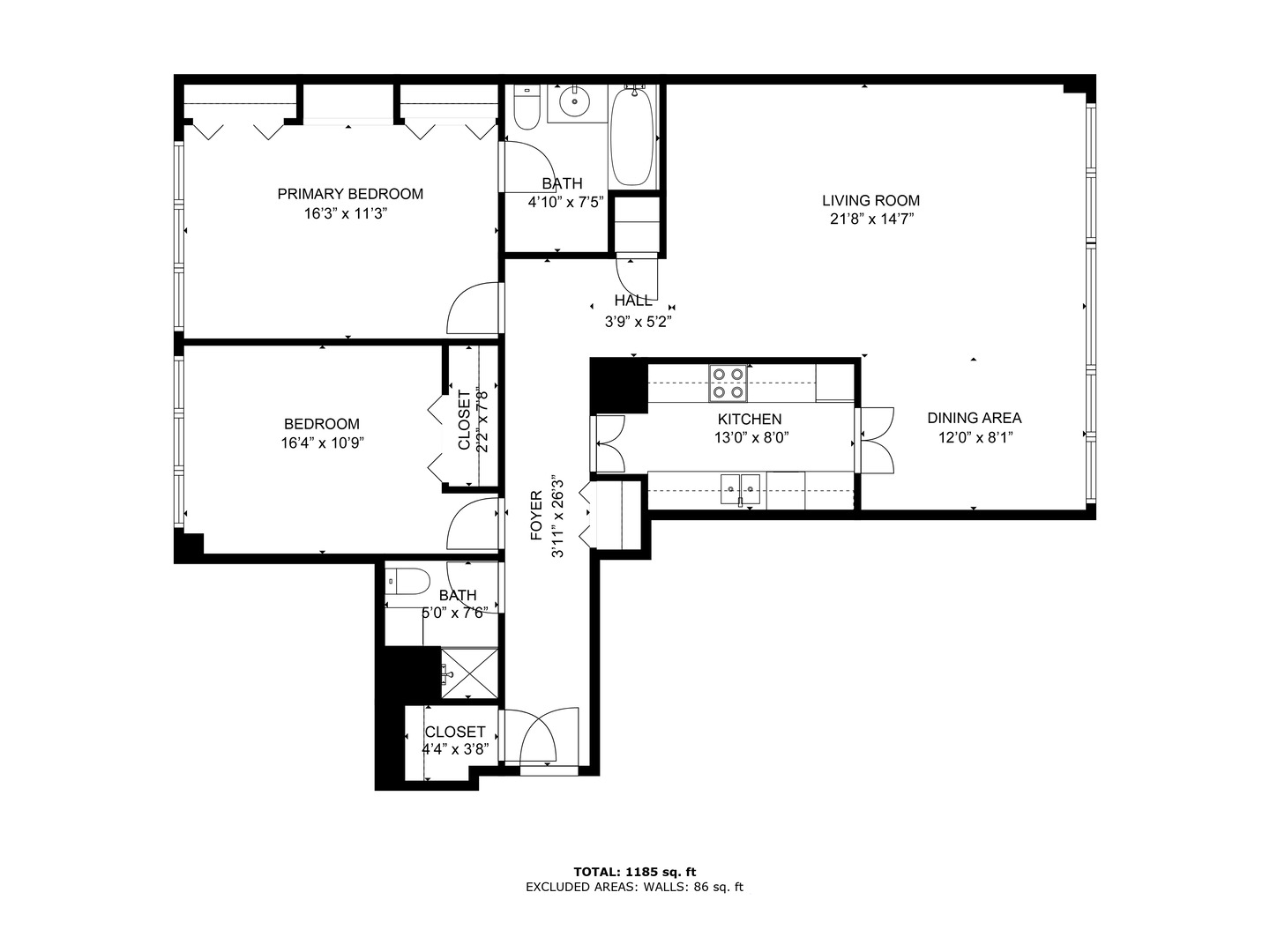
- 1,185 ft2
- Property Size
Description
Welcome to this sun-bathed 2 bedroom, 2 bathroom condo with stunning north and south views of Lake Michigan. Nestled on the 14th floor, this freshly painted “O” unit showcases several recent upgrades, including new kitchen countertops, gorgeous new flooring throughout, and revitalized bathrooms. The spacious primary bedroom features spectacular views of the beach, the lake, and the downtown skyline. Start your mornings with a cup of coffee as you watch the sun rise from this expansive open living and dining area where the views never disappoint. Shoreline Towers is a full-amenity building offering an incredible rooftop deck with sweeping lake and city views, a newly updated fitness center, a large renovated common laundry room, additional storage, and 24/7 door staff. Located near Loyola University, the beach, lakefront bike path, public transportation, Whole Foods, Aldi, and an array of fantastic restaurants and shops. This is lakeside living at its finest! Welcome home.
- Principal and Interest
- Property Tax
- HOA fee
- Private Mortgage Insurance

























