Overview
- 486413
- Property ID
- Updated On:
- April 26, 2026
- Independent Homes
- Category
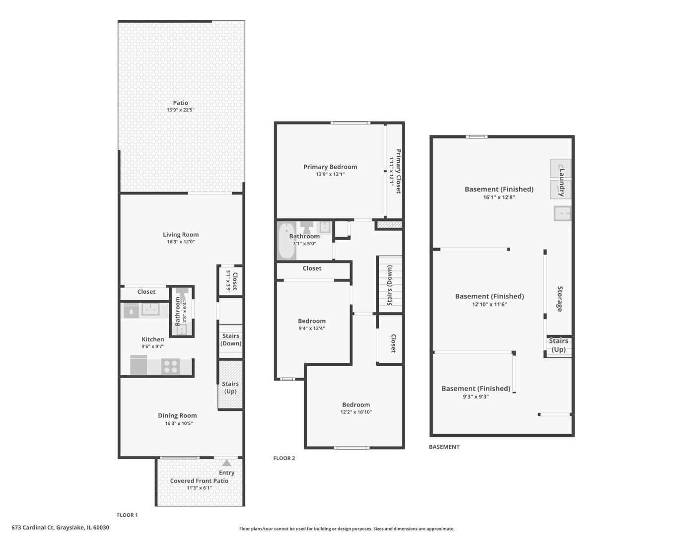
- 3
- Bedrooms
- 2
- Bathrooms
- 1,630 ft2
- Property Size
Description
ORIGINAL OWNER! 2-story townhome with a FULL BASEMENT in Quail Creek, offering a well-organized layout & a LONG RECORD OF CAREFUL UPKEEP. The main level begins with a covered front patio entry & includes a dedicated dining room, kitchen with newer flooring & updated sink drains, & a bright living room at the rear with sliding glass doors leading to a concrete deck RECENTLY RESURFACED with durable polyaspartic coating for LOW-MAINTENANCE outdoor use. Ceiling fans are installed throughout the home for consistent comfort & airflow. The second level holds all three bedrooms featuring Pella windows & NEW CUSTOM BLINDS. The FULL BASEMENT is partially finished & includes in-unit laundry while still providing flexible space for additional living areas, storage, or future customization. A BRAND NEW WATER HEATER adds to the long list of practical updates, making this a straightforward option for buyers focused on layout efficiency, condition, and long-term ownership stability. **ADDITIONAL UPDATES: List of updates included in photo lineup, & under “Additional Information” tab in the listing**
- Principal and Interest
- Property Tax
- HOA fee
- Private Mortgage Insurance









































