Overview
- 336498
- Property ID
- Updated On:
- April 20, 2026
- Independent Homes
- Category
- 3
- Bedrooms
- 3
- Bathrooms
- 1,767 ft2
- Property Size
Description
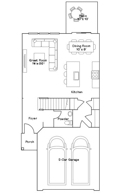
SPECIAL FINANCING OFFERS AVAILABLE! READY FOR JUNE DELIVERY! Homesite #1102. Introducing the Marianne, a newly designed two-story duplex that seamlessly blends comfort and elegance. This model offers three spacious bedrooms, two full baths, a half bath, complete with a two-car garage for added convenience. The first floor features the great room, the focal point of the home, effortlessly flowing into the dining area and the open kitchen. The kitchen boasts a magnificent island with a breakfast bar, 42″ cabinets, polished quartz countertops, and stainless steel appliances. Luxury vinyl plank flooring spans the main floor. On the second floor, you’ll find two generously sized secondary bedrooms, along with the exquisite owner’s suite-a true sanctuary to unwind after a busy day. This serene retreat includes a generous walk-in closet and a spa-inspired bath for the ultimate relaxation experience. Complete with a convenient upstairs laundry room, the Marianne combines thoughtful design and modern amenities, offering both comfort and style in every corner. *Photos are not this actual home* Woodlore Townes is a community of new townhomes for sale in Crystal Lake, offering easy access to top-ranked schools, recreation and commercial areas. Situated in the well-regarded Community High School District 155, Crystal Lake residents enjoy access to excellent education opportunities, a bustling downtown district for everyday needs and great parks. Close by are Illinois Route 176 and the Metra line to simplify commutes. Charming downtown Algonquin with Riverfront parks and fishing . Just minutes to Northwestern Medicine, health clubs, golf courses and easy access to the Randall Rd. corridor shops and restaurants, including Trader Joes, Coopers Hawk, Lifetime Fitness, Target, Costco, Algonquin Commons, and more.
- Principal and Interest
- Property Tax
- HOA fee
- Private Mortgage Insurance
























