Overview
- 133475
- Property ID
- Updated On:
- April 2, 2026
- Independent Homes
- Category
- 3
- Bedrooms
- 3
- Bathrooms
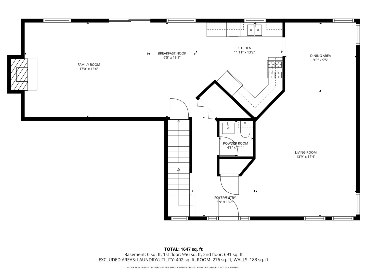
- 1,781 ft2
- Property Size
Description
Welcome to this beautifully maintained 3-bedroom, 2.5-bath home offering a perfect blend of comfort, style, and thoughtful updates throughout. From the moment you step inside, you’ll appreciate the rich hardwood flooring that flows seamlessly through the home. The inviting layout features a spacious living room, formal dining area, and an updated kitchen complete with granite countertops, stainless steel appliances, pantry, and a bright breakfast area. The adjoining family room, highlighted by a cozy fireplace, provides the perfect space to relax or entertain. Upstairs, you’ll find generously sized bedrooms, including a primary suite with a private bath and ample closet space. Recent improvements include new upstairs bathroom fans (2024), new toilets upstairs and a stylish vanity in the powder room (2025). Step outside to a beautifully landscaped yard, enhanced with professional landscaping (2016), tree removal and new sod (2020). A standout feature is the custom-built shed, thoughtfully finished on the interior in 2024 with added gutters and steps-creating a quiet, private sanctuary ideal for a home office, studio, or retreat. Additional updates include siding, gutters, and gutter guards (2016), a new dishwasher (2023), and continued care that makes this home truly move-in ready. This property is a true sanctuary; schedule your showing today!

- Principal and Interest
- Property Tax
- HOA fee
- Private Mortgage Insurance











































