7050 N Keating Avenue, Lincolnwood, IL

$486,000

Overview

  • 187368
  • Property ID
  • Updated On:
  • April 12, 2026
  • 3
  • Bedrooms
  • 2
  • Bathrooms
  • 0 ft2
  • Property Lot Size

Description

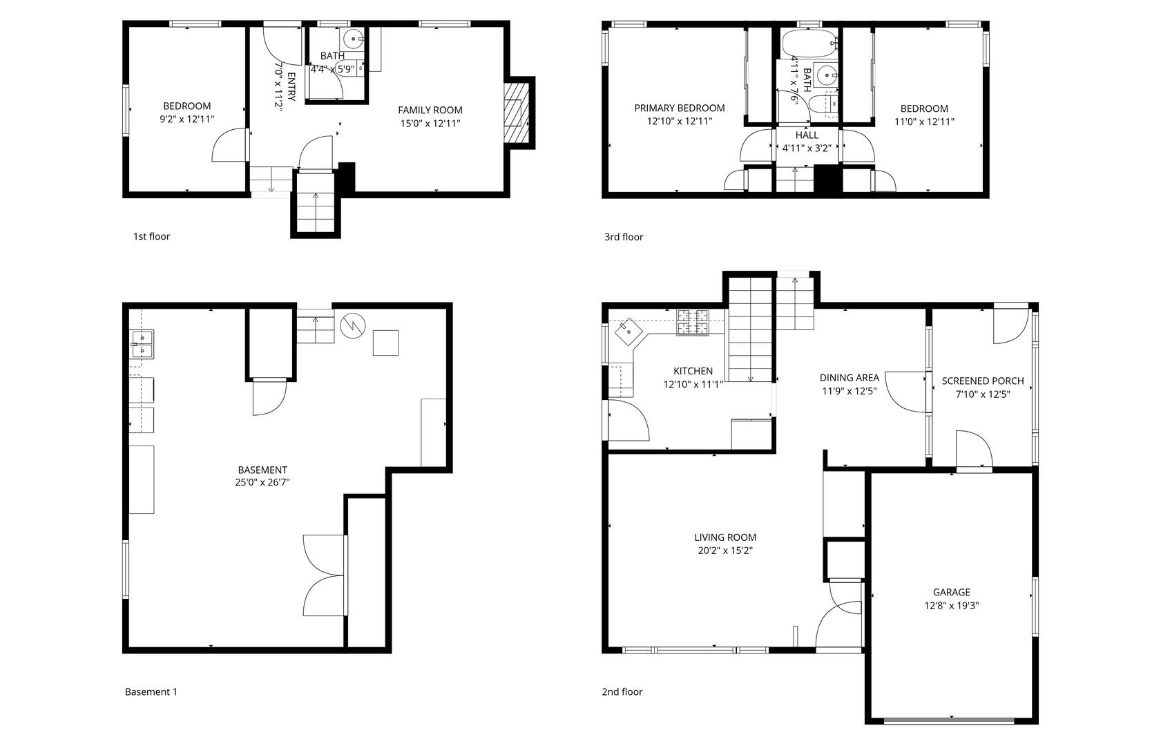
One-of-a-kind split-level home with sub-basement in the highly sought-after Lincolnwood neighborhood, located within top-rated school districts. The open floor plan features an impressive living room with soaring ceilings and a formal dining area with access to a sun-filled sunroom. The bright eat-in kitchen offers every convenience. Upstairs, you’ll find comfortable bedrooms with roomy closets and ceiling fans. The lower level includes a cozy family room with a charming brick fireplace, an additional bedroom, a powder room, and direct access to the beautifully landscaped large backyard. The sub-basement provides abundant storage and a dedicated laundry room. Unbeatable location close to shopping and expressways. A fantastic opportunity-being sold AS-IS.

Bathrooms
2
3
Climate Control
Air Conditioning
Heating
Garden
Yes
Parking
Garage
Other Features
Asphalt
Attached
Attached Fireplace Doors/Screen
Backup Sump Pump;
Brick
Built-in Features
Cathedral Ceiling(s)
Ceiling Fan(s)
Central Air
Circuit Breakers
Concrete
Concrete Perimeter
Dishwasher
Disposal
Dryer
Fenced
Forced Air
Garage Door Opener
Garage Owned
Lake Michigan
Natural Gas
Public Sewer
Range
Refrigerator
Screens
Separate Dining Room
Sump Pump
Washer
Water Heater-Gas
Wood Burning

yelp logo

$2,491.82
per month
  • Principal and Interest
  • Property Tax
  • HOA fee
  • Private Mortgage Insurance
$ 1,884.32

Similar Listings

For Sale

435 N Michigan Avenue #503, Chicago, IL

$2,675,000
Beds:
3
Baths:
4
Size:
3,249 ft2
Tribune Tower Residence offers an amazing opportunity to own a home in one of Chicago's mo ...
For Sale

1576 Pine Lake Drive, Naperville, IL

$1,015,000
Beds:
4
Baths:
5
Size:
3,969 ft2
Located in the prestigious White Eagle Golf Club community, known for its premier amenitie ...
Information for the property at 7050 N Keating Avenue, Lincolnwood, IL, 60712 (Property ID: 187368) is deemed reliable but not guaranteed. Property details, pricing, and availability are subject to change without notice. Buyers should independently verify all information before making any real estate decisions.

Compare Listings

Sunita Kakarlapudi