Overview
- 278523
- Property ID
- Updated On:
- April 17, 2026
- Independent Homes
- Category
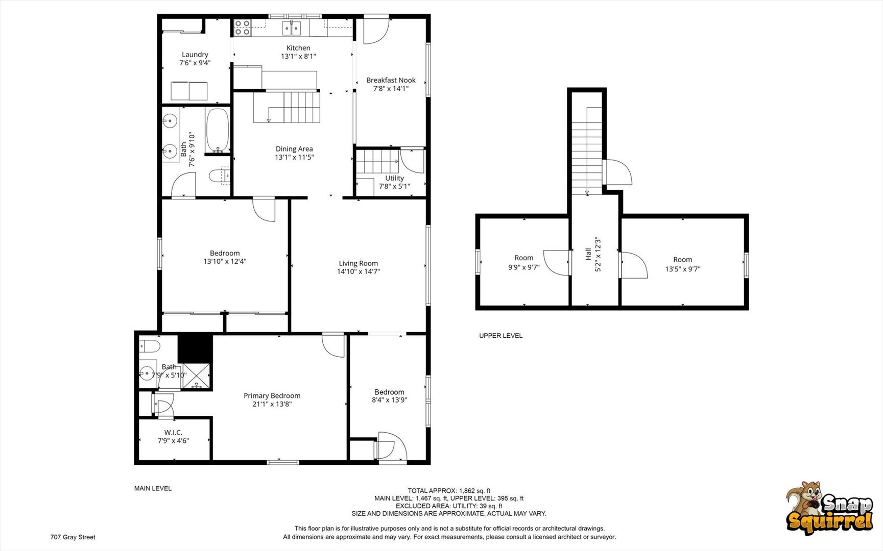
- 2
- Bedrooms
- 2
- Bathrooms
- 1,862 ft2
- Property Size
- 0 ft2
- Property Lot Size
Description
This property is ready for its new owners! Currently featuring 2 bedrooms and 2 full bathrooms, the home also offers the potential for up to 4 bedrooms, with two additional rooms upstairs ready to be finished to suit your needs. The main level provides a functional and comfortable layout, while several key updates have already been completed, including a metal roof installed approximately 10 years ago, a new furnace in 2025, and replacement windows throughout most of the home around 2010, with the exception of the kitchen and upstairs attic area. Situated on a generous .46-acre lot, the property provides plenty of outdoor space to enjoy, along with a 2.5-car detached garage offering great storage, workspace, or additional parking. Don’t miss out! Call today to schedule a private showing. **Being sold AS IS.**
- Principal and Interest
- Property Tax
- HOA fee
- Private Mortgage Insurance





































